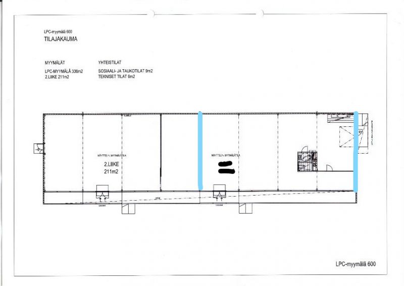
Pohjapiirros
Pohjapiirros

Vuokrataan liiketilat - Kouvola

Laturinkatu 7, 45130 Kouvola #10691325

Kiinteistölle myönnetty Ekokompanssi-ympäristöjärjestelmän Sertifikaatti

Osoite
Laturinkatu 7, 45130 Kouvola
Tilatyyppi
Liiketilaa
281 m2
Pohjapiirros
Vuokralaisia
Puusteli Keittiö, Laattapiste-Pukkila Showroom
Vapautuu
01.01.2021
Rakennusvuosi
2007

Katutasossa

Näkyvällä paikalla

Liitetiedostot

Ota yhteyttä

Haru Kiinteistöt Oy

Mestarintie 5, 01730 VANTAA
p Näytä puhelinnumero (09) 878 031 / Näytä puhelinnumero 040 922 33 77

Pyydä lisätietoa

Kohteesta Laturinkatu 7, Kouvola

 

B2B palvelut

MARKKINOINTI

Tavoita oikea kohderyhmä!

LASTAUSRATKAISUT

Mainos
Lastauksien ratkaisut tehokkaammin ja turvallisemmin