Vuokrataan liiketilat - Helsinki
Tuulensuuntori 1, Hermanni, 00580 Helsinki #10691195
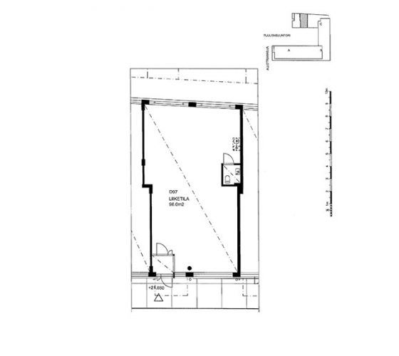
Vuokrattavana siistiä liiketilaa.
Osoite
Tuulensuuntori 1, 00580 Helsinki
Tilatyyppi
Liiketilaa
96 m2
Kiinteistö
Vuokrattavana siistiä liiketilaa, joka sijaitsee asuinrakennuksen kivijalassa.
Sijainti
Hermanni, Helsinki
Pysäköinti
Kiinteistön pihalla.
Palvelut
Lähialueen palvelut.
Kulkuyhteydet
-Metro
-Raitiovanu
-Bussi
-Oma auto
-Raitiovanu
-Bussi
-Oma auto
Vapautuu
Heti
Kerros
1
Energiatehokkuusluokka
Ei lain edellyttämää energiatodistusta
Katutasossa
Näkyvällä paikalla
Ota yhteyttä
REALIUM OY LKV
Tammasaarenkatu 1, 00180 Helsinki
Vaihde:
Näytä puhelinnumero
010 326 346
Tuomo Mäkelä
tuomo.makela@realium.fi
p.
Näytä puhelinnumero
044 050 1158
Joel Keto
joel.keto@realium.fi
p.
Näytä puhelinnumero
045 317 0330
KAIKKI TILAVAIHTOEHDOT KERRALLA!
SOITA - MEILAA JA TILAA NÄYTTÖ!
Ilmainen palvelu tilanhakijoille.
Kartoitamme parhaat tilavaihtoehdot.
Kaikki kohteet eivät ole netissä.
Pyydä lisätietoa
