Vuokrataan toimistotilat - Helsinki
Tammasaarenkatu 3, Ruoholahti, 00180 Helsinki #10690083
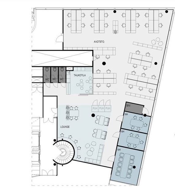
Hyväkuntoinen avotoimistotila muutamalla huoneella meren äärellä Ruoholahden rannassa. Kiinteistössä jäähdyttävä ilmastointi, aulapalvelu, kulunvalvonta, auditorio, neuvottelu- ja koulutustiloja, lounasravintola, cateringpalvelu, edustus- ja saunatilat katolla. kuntosali, autohalli. Oya yhteyttä ja sovi esittely, vuokrauspalvelumme on tilanhakijoille maksuton.
Osoite
Tammasaarenkatu 3, 00180 Helsinki
Tilatyyppi
Toimistotilaa
399 m2
Tilajako
Jaettavissa
Pohjapiirros
Kiinteistö
HTC-Ruoholahti
Sijainti
Meren äärellä Tammasaaren rannassa.
Pysäköinti
Lämmin autohalli kiinteistössä johon suora hissiyhteys.
Kulkuyhteydet
Metro, bussit, raitiovaunu, länsiväylä.
Vapautuu
Heti
Rakennusvuosi
2002
Kerros
5 / 6
Energiatehokkuusluokka
Ei lain edellyttämää energiatodistusta
Näkyvällä paikalla
Jaettavissa
Hissi
Ota yhteyttä
Senaatin Notariaatti Oy LKV
Lämmittäjänkatu 4 A
FIN-00880 Helsinki
Tel:
Näytä puhelinnumero
+358 9 7745 100
Pyydä lisätietoa
