Vuokrataan toimistotilat - Helsinki
Mannerheimintie 15b, Keskusta, 00100 Helsinki #10689341
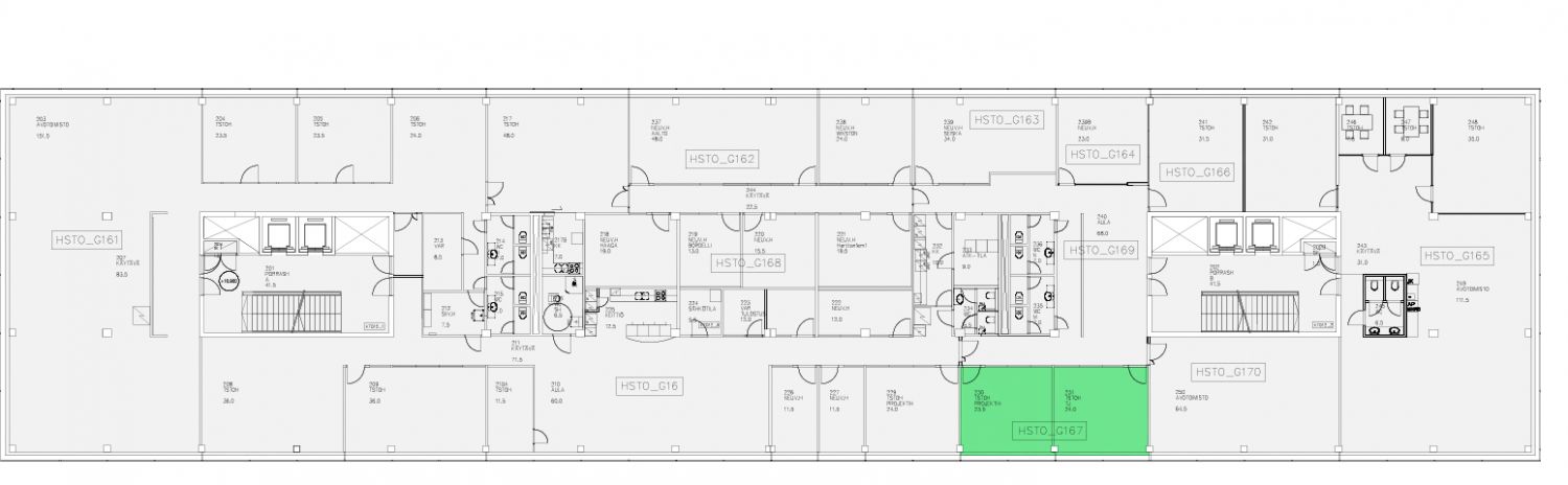
Vuokrattavana 2. kerroksen toimistotilaa entisessä Töölön sokeritehtaassa.
Osoite
Mannerheimintie 15b, 00100 Helsinki
Tilatyyppi
Toimistotilaa
48 m2
Kiinteistö
Vuokrattavana 2. kerroksen toimistotilaa entisessä Töölön sokeritehtaassa. Tilaan kuuluu kaksi huonetta. Vuokralaisen käytössä yhteiskäyttöiset wc- ja keittiötilat.
Sijainti
Taka-Töölö, Helsinki
Pysäköinti
Pysäköintitilaa lähellä sijaitsevalla pysäköintialueella.
Palvelut
Kaikki keskustan palvelut lähietäisyydellä.
Kulkuyhteydet
-Raitiovaunu
-Bussi
-Oma auto
-Bussi
-Oma auto
Vapautuu
Heti
Kerros
2
Energiatehokkuusluokka
Ei lain edellyttämää energiatodistusta
Näkyvällä paikalla
Hissi
Ota yhteyttä
REALIUM OY LKV
Tammasaarenkatu 1, 00180 Helsinki
Vaihde:
Näytä puhelinnumero
010 326 346
Tuomo Mäkelä
tuomo.makela@realium.fi
p.
Näytä puhelinnumero
044 050 1158
Joel Keto
joel.keto@realium.fi
p.
Näytä puhelinnumero
045 317 0330
KAIKKI TILAVAIHTOEHDOT KERRALLA!
SOITA - MEILAA JA TILAA NÄYTTÖ!
Ilmainen palvelu tilanhakijoille.
Kartoitamme parhaat tilavaihtoehdot.
Kaikki kohteet eivät ole netissä.
Pyydä lisätietoa
