Vuokrataan liiketilat - Loviisa
Kuningattarenkatu 11, 07900 Loviisa #10688768
Vuokrataan toisen kerroksen valoisa myymälätila Loviisassa - tila jaettavissa useammalle yritykselle!
Osoite
Kuningattarenkatu 11, 07900 Loviisa
Tilatyyppi
Liiketilaa
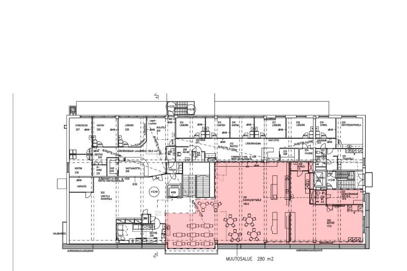
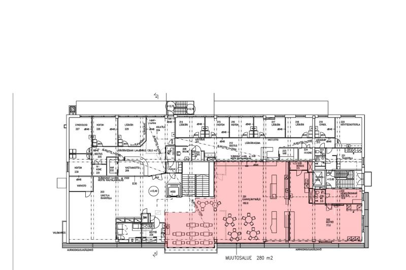
265 m2
Vuokra
3'180 €/kk + alv
Vuokraan sisältyy vesi
Muuta
Nyt vuokrattavana Kauppakeskus Gallerian toisessa kerroksessa oleva myymälätila. Kauppakeskus sijaitsee näkyvällä paikalla aivan Loviisan keskustassa, kaupungin vilkkaimmalla kadulla.
Kauppakeskuksessa toimivat yritykset:
Silmäasema
Veikon Kone
Team Sportia
Karvonen Shop
Oishi Sushi
Lääkärikeskus Fenix
Avoimet ja valoisat, yhteensä n.265 m² tilat soveltuvat yhdelle, tai ovat myös jaettavissa useammalle yritykselle. Takatilassa on keittiötila, vesipiste ja voimavirta. Näin ollen tila sopii mainiosti myös kahvila- ja ravintolatoiminnolle. Ennen ravintola toimintaa on tilassa ollut kirjakauppa; valoisat tilat sopivatkin hyvin juuri myymäläkäyttöön. Kauppakeskukseen tulijan on helppo huomata liikepaikka.
Tilasta loistava näyteikkunanäkymä Kuningattarenkadulle. Toiseen kerrokseen pääsee tarvittaessa myös hissillä, joten lastenvaunut tai liikuntarajoitekaan eivät estä asiakkaita tulemasta ostoksille.
Kauppakeskuksen etupihalla on hyvä markkinapaikka ja sen käyttö on kesäkaudella mahdollista erikseen sovitusti. Ilmainen paikoitus kadulla ja omalla pihalla.
Valoisa tila hyvällä sijainnilla Loviisan keskustassa – tämä tila muuntuu monelle yritykselle!
Kohdetiedot
Sijanti
Katuosoite: Kuningattarenkatu 11, 07900 Loviisa
Ympäristö: Loviisan ydinkeskusta, kauppakeskus
Rakennus/huoneisto
Pinta-alat: Noin 265 m²
Kiinteistötyyppi: Kauppakeskus
Tilatyyppi: Liikehuoneisto
Kunto, varusteet ja palvelut: Hyväkuntoinen tila, toiseen kerrokseen pääsee hissillä, tilassa wc, keittiövalmius, hyvä valaistus, vesipisteitä ja voimavirtaa
Pysäköinti: ilmainen, kadulla ja omalla pihalla
Vapautuu: Heti vapaa
Vuokrahinta ja kulut
Kuukausivuokra: 12 €/m²/kk + alv
Sähkö- ja vesimaksu: Sähkö mittauksen mukaan, vesi sisältyy hintaan
Lämmitys: Sisältyy vuokraan
Muuta: Vakuus 3kk vuokraa vastaava summa, minimisopimus 12kk ja luottotietojen on oltava kunnossa
Kauppakeskuksessa toimivat yritykset:
Silmäasema
Veikon Kone
Team Sportia
Karvonen Shop
Oishi Sushi
Lääkärikeskus Fenix
Avoimet ja valoisat, yhteensä n.265 m² tilat soveltuvat yhdelle, tai ovat myös jaettavissa useammalle yritykselle. Takatilassa on keittiötila, vesipiste ja voimavirta. Näin ollen tila sopii mainiosti myös kahvila- ja ravintolatoiminnolle. Ennen ravintola toimintaa on tilassa ollut kirjakauppa; valoisat tilat sopivatkin hyvin juuri myymäläkäyttöön. Kauppakeskukseen tulijan on helppo huomata liikepaikka.
Tilasta loistava näyteikkunanäkymä Kuningattarenkadulle. Toiseen kerrokseen pääsee tarvittaessa myös hissillä, joten lastenvaunut tai liikuntarajoitekaan eivät estä asiakkaita tulemasta ostoksille.
Kauppakeskuksen etupihalla on hyvä markkinapaikka ja sen käyttö on kesäkaudella mahdollista erikseen sovitusti. Ilmainen paikoitus kadulla ja omalla pihalla.
Valoisa tila hyvällä sijainnilla Loviisan keskustassa – tämä tila muuntuu monelle yritykselle!
Kohdetiedot
Sijanti
Katuosoite: Kuningattarenkatu 11, 07900 Loviisa
Ympäristö: Loviisan ydinkeskusta, kauppakeskus
Rakennus/huoneisto
Pinta-alat: Noin 265 m²
Kiinteistötyyppi: Kauppakeskus
Tilatyyppi: Liikehuoneisto
Kunto, varusteet ja palvelut: Hyväkuntoinen tila, toiseen kerrokseen pääsee hissillä, tilassa wc, keittiövalmius, hyvä valaistus, vesipisteitä ja voimavirtaa
Pysäköinti: ilmainen, kadulla ja omalla pihalla
Vapautuu: Heti vapaa
Vuokrahinta ja kulut
Kuukausivuokra: 12 €/m²/kk + alv
Sähkö- ja vesimaksu: Sähkö mittauksen mukaan, vesi sisältyy hintaan
Lämmitys: Sisältyy vuokraan
Muuta: Vakuus 3kk vuokraa vastaava summa, minimisopimus 12kk ja luottotietojen on oltava kunnossa
Vapautuu
Heti
Näkyvällä paikalla
Ota yhteyttä
Tilat.fi
KTM, LKV Antti Soivio
Näytä puhelinnumero
0400 446 553
OTM, LKV Riikka Tuominen
Näytä puhelinnumero
0400 551 790
KTM, LKV Maria-Sofia Puhakka
Näytä puhelinnumero
0400-150330
Yrityksen virallinen nimi: LKV Toimitilaa.fi Oy. Toimitilojen välitykseen erikoistunut yritys.
http://www.tilat.fiPyydä lisätietoa
