Vuokrataan toimistotilat - Helsinki
Hämeentie 29, Sörnäinen, 00500 Helsinki #10688762
Pientoimistotilaa loistavien kulkuyhteyksien äärellä.
Osoite
Hämeentie 29, 00500 Helsinki
Tilatyyppi
Toimistotilaa
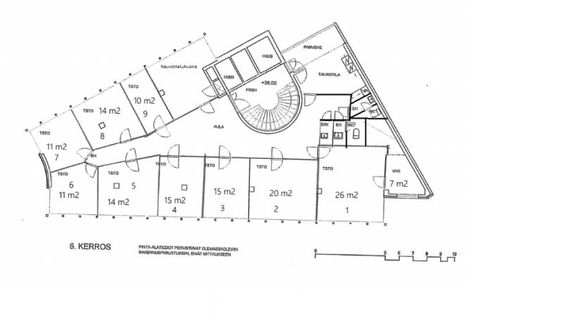
33 m2
Pohjapiirros
Kiinteistö
Pientoimistokerroksesta on vuokrattavissa yksittäisiä toimistohuoneita.
Vuokraan sisältyy mm. sähkö, siivous, internet, kokoushuoneen yhteiskäyttö.
Keittiö ja wc:t yhteiskäytössä.
Talon pysäköintipaikalta voit vuokrata autopaikan.
Metro- ja raitiovaunuyhteydet löytyvät aivan rakennuksen ulkopuolelta.
Rakennuksen katutasossa toimivat ravintolat Kolme Kaisaa ja Picnic.
Vuokraan sisältyy mm. sähkö, siivous, internet, kokoushuoneen yhteiskäyttö.
Keittiö ja wc:t yhteiskäytössä.
Talon pysäköintipaikalta voit vuokrata autopaikan.
Metro- ja raitiovaunuyhteydet löytyvät aivan rakennuksen ulkopuolelta.
Rakennuksen katutasossa toimivat ravintolat Kolme Kaisaa ja Picnic.
Vapautuu
Heti
Kerros
6
Energiatehokkuusluokka
Ei lain edellyttämää energiatodistusta
Näkyvällä paikalla
Hissi
Ota yhteyttä
ScanReal Oy LKV
Opus Business Park
Hitsaajankatu 24
00810 Helsinki
info@scanreal.fi
Puh:
Näytä puhelinnumero
020 730 8830
Sopivat toimitilat yhdellä otolla!
Kartoitamme toimitilatarpeesi ja etsimme yrityksellesi parhaiten sopivat vapaat toimitilat. Koska vuokranantajat maksavat palvelumme, on tämä yrityksellesi veloituksetonta.
OTA YHTEYTTÄ - SOVI NÄYTTÖ!
Kaikki kohteemme eivät ole netissä, kerro tilatarpeesi niin kartoitamme vaihtoehdot.
Palvelumme on tilanhakijalle ilmainen
Pyydä lisätietoa
