Vuokrataan liiketilat - Seinäjoki
Päivölänkatu 2, Pohja, 60120 Seinäjoki #10687462
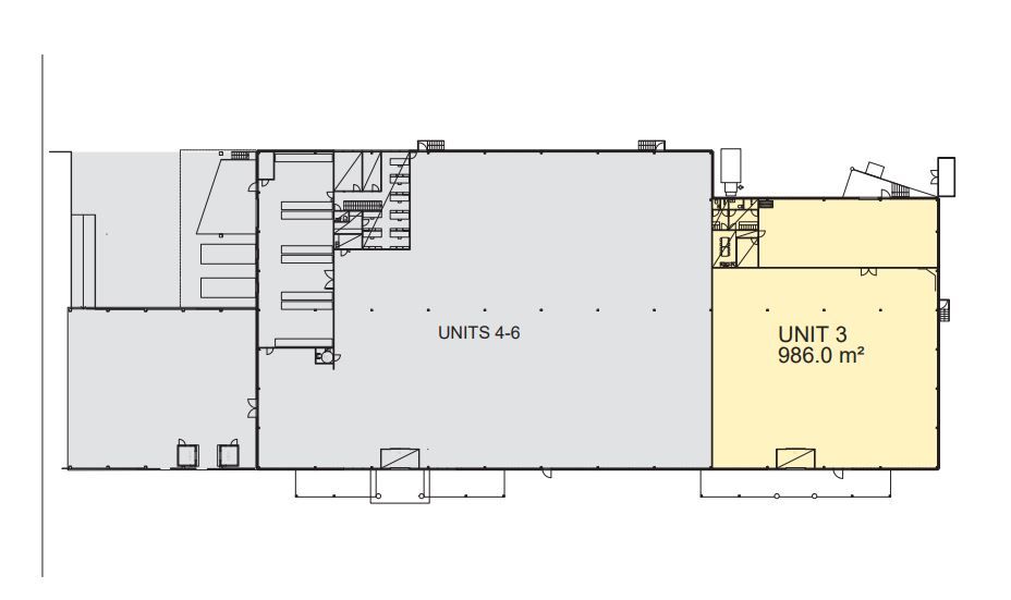
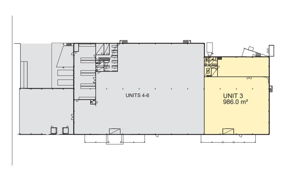
Hyvällä sijainnilla Seinäjoen Retail Parkissa siisti liiketila. Piha-alueella runsaasti asiakaspaikkoja, ja erinomaiset lastausmahdollisuudet liiketiloihin.
Lisätietoja 020 7290 710. Lisää kohteita www.premises.fi
Kohteella ei ole lain edellyttämää energiatodistusta tai energialuokka ei tiedossa.Kerros: 1
Osoite
Päivölänkatu 2, 60120 Seinäjoki
Tilatyyppi
Liiketilaa
982 m2
Ota yhteyttä
CRE PREMISES
Puh. Näytä puhelinnumero 020 7290 710
Vantaankoskentie 14
01670 VANTAA
Pyydä lisätietoa
