Vuokrataan toimistotilat, liiketilat - Jyväskylä
Onkapannu 2, Savela, 40700 Jyväskylä #10687215
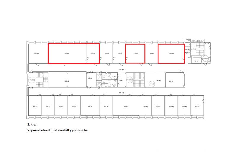
Hyvällä paikalla Savelan S-markettia vastapäätä monipuolista toimistotilaa. Tiloja mahdollista muokata ja yhdistellä toimijan tarpeiden mukaan.
Ota yhteyttä, niin katsotaan teille sopiva tilakokonaisuus!
Jaettavissa
Aveon Real Estate Oy
Kauppakatu 18 C 26, 40100 Jyväskylä
Henri Kumpulainen
Puh.
Näytä puhelinnumero
040 864 3631
henri.kumpulainen@aveon.fi
Olemme kiinteistöliiketoiminnan asiantuntija, joka toimii yrittäjämäisesti neuvonantajana kiinteistökaupoissa, toimitilavälittämisessä sekä kiinteistökehityksessä.
Asiakkaitamme ovat kotimaiset ja ulkomaiset kiinteistönomistajat, -sijoittajat sekä tilojen käyttäjät kaikkialla Suomessa.
