Vuokrataan toimistotilat - Helsinki
Runeberginkatu 5, Kamppi, 00101 Helsinki #10686764
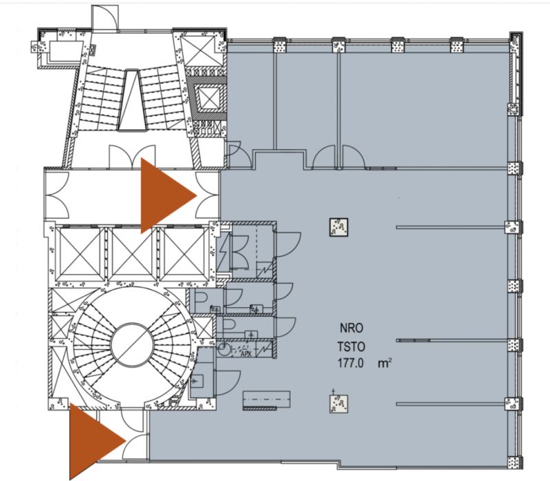
Vuokrattavana loistavaa, siistiä toimistotilaa.
Osoite
Runeberginkatu 5, 00101 Helsinki
Tilatyyppi
Toimistotilaa
177 m2
Kiinteistö
Vuokrattavana loistavaa, siistiä toimistotilaa, jossa on avotilaa ja työhuoneita.
Sijainti
Kamppi, Helsinki
Pysäköinti
Maanalaista pysäköintitilaa korttelin omassa autohallissa.
Palvelut
Ydinkeskustan palvelut.
Kulkuyhteydet
-Metroasema 200 m
-Raitiovaunupysäkki 400 m
-Bussipysäkki 100 m
-Juna-asema 800 m
-Raitiovaunupysäkki 400 m
-Bussipysäkki 100 m
-Juna-asema 800 m
Vapautuu
Heti
Kerros
5
Energiatehokkuusluokka
E2007
Näkyvällä paikalla
Hissi
Ota yhteyttä
REALIUM OY LKV
Tammasaarenkatu 1, 00180 Helsinki
Vaihde:
Näytä puhelinnumero
010 326 346
Tuomo Mäkelä
tuomo.makela@realium.fi
p.
Näytä puhelinnumero
044 050 1158
Joel Keto
joel.keto@realium.fi
p.
Näytä puhelinnumero
045 317 0330
KAIKKI TILAVAIHTOEHDOT KERRALLA!
SOITA - MEILAA JA TILAA NÄYTTÖ!
Ilmainen palvelu tilanhakijoille.
Kartoitamme parhaat tilavaihtoehdot.
Kaikki kohteet eivät ole netissä.
Pyydä lisätietoa
