Myydään toimistotilat - Helsinki
Haagan Toimistoristikko, Nuijamiestentie 5, Haaga, 00400 Helsinki #10685750
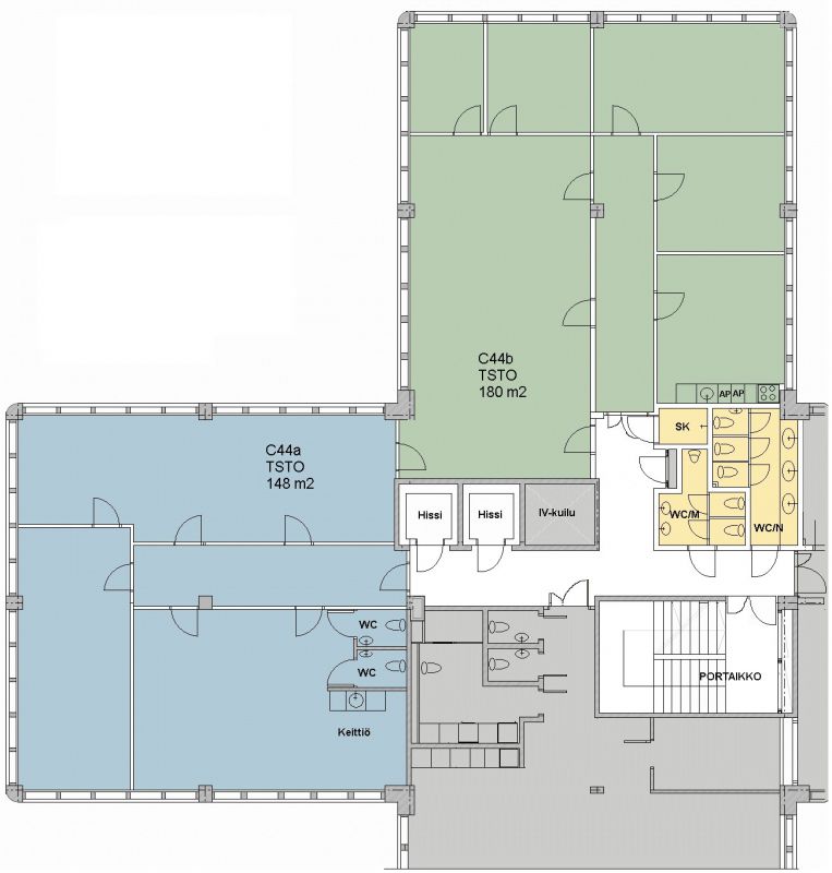
Myydään Haagan toimistoristikko-talosta hyväkuntoinen 180m2 kombitoimisto jossa huoneita ,avotilaa sekä keittiö-taukotila. (Toimisto on liitettävissä viereiseen 148m2 toimistoon jolloin yhteispinta-ala on 328m2). Talossa on jäähdyttävä ilmanvaihto, nopeat tietoliikenneyhteydet sekä reilusti pysäköintitilaa isossa parkkihallissa. Kiinteistö on peruskorjattu viimeisen 10 vuoden kuluessa ja on siten edustavassa kunnossa. Haagan Toimistoristikko Oy on hyvin hoidettu keskinäinen kiinteistöosakeyhtiö. SOITA ja KYSY LISÄÄ: - 0400-688861 / Jukka Myyryläinen
Kiinteistölle suoritetut peruskorjaukset viimeisen 10-vuoden aikana:
- 2010 Kamera ja kulunvalvontajärjestelmien asentaminen
- 2010 Lämmityspattereiden uusiminen
- 2011 Asbestikartoitus
- 2011 Ilmanvaihdon puhdistus ja säätö
- 2014 Julkisivun peruskorjaus
- 2014 Rakennuksen ikkunoiden uusiminen
- 2016 Vesikaton kattokaivojen uusiminen
- 2017 Väestönsuojien laitteistojen huolto ja uusiminen
- 2018 Vesi- ja viemärijärjestelmien uusiminen ja peruskorjaus
- 2018 Ilmanvaihtokojeiden uusiminen
- 2018 Sähkönousujen uusiminen ryhmäkeskuksille
- 2019 Lämmönjakokeskuksen uusiminen
- 2019 Ilmanvaihtohormien tiivistys
- 2019 Patteriverkoston tasapainotus ja säätö
- 2019 Vesikaton kuntotutkimus
- 2020 Talon aulatilojen saneeraus
- 2020 Hissikorien ja ovien pinnoitus
- 2020 Sähköautojen latausasemien asentaminen sekä autosähkötolppien uusinta
- Hoitovastike 5.00/m2 = 900;-/kk (alv 0%)
- Yhtiö omistaa 1.855 m2 talon tiloista, joista saadaan vuokratuloja n. 360.000,- (2019).
Näkyvällä paikalla
Hissi
Senaatin Notariaatti Oy LKV
Lämmittäjänkatu 4 A
FIN-00880 Helsinki
Tel:
Näytä puhelinnumero
+358 9 7745 100
