Vuokrataan varastotilat - Espoo
Ruukinkuja 4, Kivenlahti, 02330 Espoo #10684971
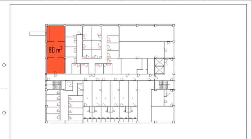
Vuokrattavana varastotilaa rakennuksen kellarikerroksessa.
Osoite
Ruukinkuja 4, 02330 Espoo
Tilatyyppi
Varastotilaa
80 m2
Kiinteistö
Vuokrattavana varastotilaa rakennuksen kellarikerroksessa, jonne pääsee myös tavarahissillä. Tila koostuu kolmesta peräkkäisestä huoneesta.
Sijainti
Espoo Kivenlahti.
Pysäköinti
Kiinteistön pihalla.
Palvelut
Kivenlahden palvelut.
Kulkuyhteydet
Hyvät kulkuyhteydet
Vapautuu
Heti
Kerros
kellarikrs.
Energiatehokkuusluokka
Ei lain edellyttämää energiatodistusta
Hissi
Lastauslaituri
Ota yhteyttä
REALIUM OY LKV
Tammasaarenkatu 1, 00180 Helsinki
Vaihde:
Näytä puhelinnumero
010 326 346
Tuomo Mäkelä
tuomo.makela@realium.fi
p.
Näytä puhelinnumero
044 050 1158
Joel Keto
joel.keto@realium.fi
p.
Näytä puhelinnumero
045 317 0330
KAIKKI TILAVAIHTOEHDOT KERRALLA!
SOITA - MEILAA JA TILAA NÄYTTÖ!
Ilmainen palvelu tilanhakijoille.
Kartoitamme parhaat tilavaihtoehdot.
Kaikki kohteet eivät ole netissä.
Pyydä lisätietoa
