Vuokrataan toimistotilat - Helsinki
Mäkelänkatu 87, Käpylä, 00610 Helsinki #10684652
Vuokrattavana viihtyisä toimistotila omalla terassilla talosta joka rakennettiin alunperin AMER-yhtymän pääkonttoriksi. Kiinteistössä on edustavat aula- ja julkiset tilat sekä monipuoliset oheispalvelut. Tila räätälöidään tulevalle käyttäjälle sopivaksi.
Ota yhteyttä ja sovi esittely, vuokrauspalvelumme on tilanhakijalle maksuton.
Osoite
Mäkelänkatu 87, 00610 Helsinki
Tilatyyppi
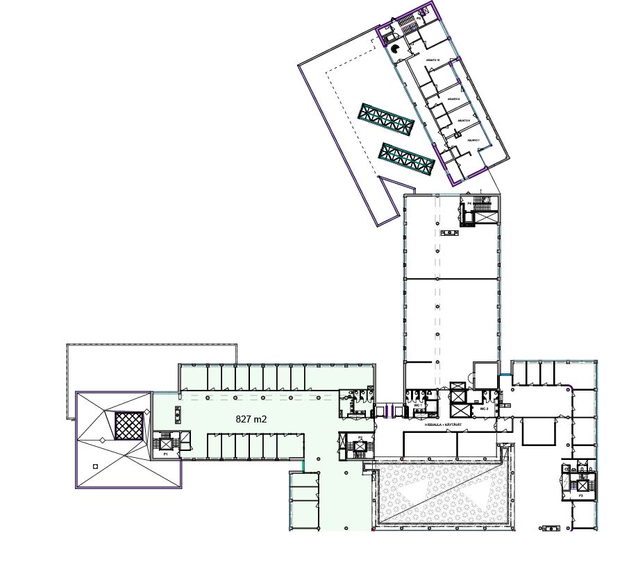
Toimistotilaa
494 m2
Pohjapiirros
Kiinteistö
AMER-talona tunnettu toimistokiinteistö
Sijainti
Näkyvä sijainti Mäkelänkadun ja Koskelantien risteyksessä.
Pysäköinti
Parkkitilaa on kahdessa kerroksessa kiinteistön alla sijaitsevassa hallissa.
Palvelut
- Aulapalvelu
- Checkpoint Cafe
- Kuntosali Fitness 24 Seven
- Fysioterapia ja hierontakeskus
- 300m2 edustus-sauna ja juhlatilat
- K-Market
- Lounasravintola ja iltaravintola Cactus
- Checkpoint Cafe
- Kuntosali Fitness 24 Seven
- Fysioterapia ja hierontakeskus
- 300m2 edustus-sauna ja juhlatilat
- K-Market
- Lounasravintola ja iltaravintola Cactus
Kulkuyhteydet
Julkiset liikenneyhteydet ovat erinomaiset: aivan talon vieressä sijaitsee useiden Helsingin sisäisten bussilinjojen ja seutulinjojen pysäkit. Myös raitiovaunupysäkki on lähellä. Pasilan juna-asemalle on noin 1,5 kilometriä, joten eri puolille Suomea pääsee liikkumaan sujuvasti.
Vuokralaisia
Rapala Oyj, Velosport Oy, Silta Oy, ym.
Vapautuu
Heti
Kerros
4
Näkyvällä paikalla
Hissi
Ota yhteyttä
Senaatin Notariaatti Oy LKV
Lämmittäjänkatu 4 A
FIN-00880 Helsinki
Tel:
Näytä puhelinnumero
+358 9 7745 100
Pyydä lisätietoa
