Vuokrataan toimistotilat - Helsinki
Sörnäisten Rantatie 29/Vilhonvuorenkatu 12, Kalasatama, 00540 Helsinki #10684080
Tarjolla uutta, saneerattua ja jäähdytettyä, tehokasta avotoimistotilaa.
Osoite
Sörnäisten Rantatie 29/Vilhonvuorenkatu 12, 00540 Helsinki
Tilatyyppi
Toimistotilaa
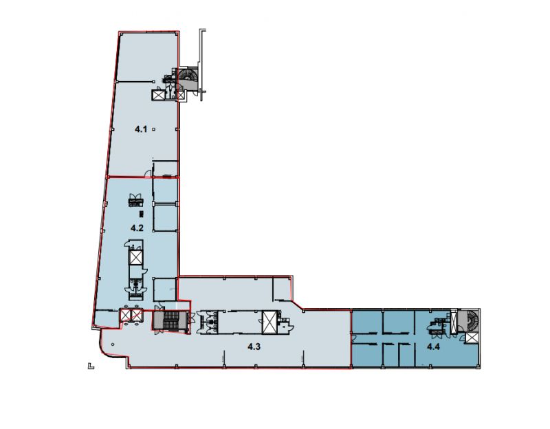
493 m2
Kiinteistö
Tarjolla uutta, saneerattua ja jäähdytettyä, tehokasta avotoimistotilaa keskeisellä paikalla Business Park -tyyppisessä ympäristössä.
Sijainti
Sörnäinen, Helsinki
Pysäköinti
Kiinteistön autohallista on vuokrattavissa paikkoja.
Palvelut
-Aulapalvelut
-Lounasravintola
-Vuokrattavia neuvuttelutiloja
Lisäksi lähialueella useita lounasravintoloita ja vähittäiskauppoja.
-Lounasravintola
-Vuokrattavia neuvuttelutiloja
Lisäksi lähialueella useita lounasravintoloita ja vähittäiskauppoja.
Kulkuyhteydet
-Metro
-Bussi
-Raitiovaunu
-Oma auto
-Bussi
-Raitiovaunu
-Oma auto
Vapautuu
Heti
Kerros
4
Energiatehokkuusluokka
Ei lain edellyttämää energiatodistusta
Näkyvällä paikalla
Hissi
Ota yhteyttä
REALIUM OY LKV
Tammasaarenkatu 1, 00180 Helsinki
Vaihde:
Näytä puhelinnumero
010 326 346
Tuomo Mäkelä
tuomo.makela@realium.fi
p.
Näytä puhelinnumero
044 050 1158
Joel Keto
joel.keto@realium.fi
p.
Näytä puhelinnumero
045 317 0330
KAIKKI TILAVAIHTOEHDOT KERRALLA!
SOITA - MEILAA JA TILAA NÄYTTÖ!
Ilmainen palvelu tilanhakijoille.
Kartoitamme parhaat tilavaihtoehdot.
Kaikki kohteet eivät ole netissä.
Pyydä lisätietoa
