Vuokrataan toimistotilat - Helsinki
Tynnyrintekijänkatu 1, Hermanni, 00580 Helsinki #10683792
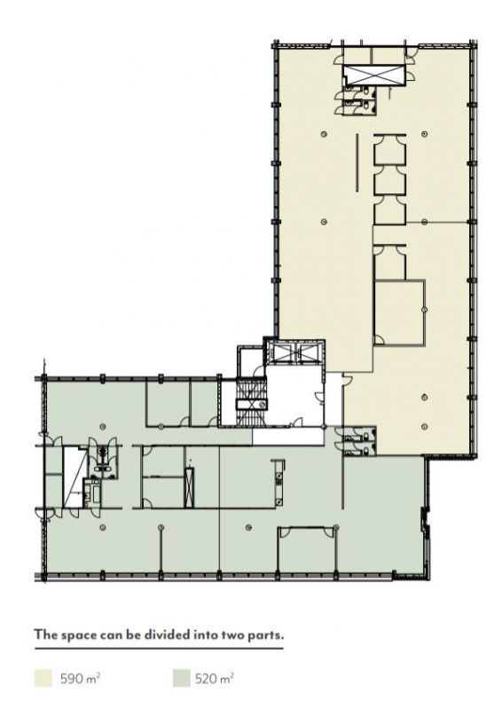
Modernissa toimistokiinteistössä Kalasatamassa vapautumassa edustavaa toimistotilaa 5:ssä kerroksessa. Kiinteistö on tasokas kaikilla Business Park palveluilla, mm. aulapalvelu, neuvottelukeskus, luentosali, kuntosali ja lounasravintola. Metroasema lähes vieressä. Pohjakuvan 590m2 on jaettavissa 269m2/324m2 osiin. Tila räätälöidään käyttäjälle sopivaksi. SOITA ja SOVI ESITTELY!
Osoite
Tynnyrintekijänkatu 1, 00580 Helsinki
Tilatyyppi
Toimistotilaa
269 m2
Kiinteistö
Kalasataman Trooli
Sijainti
Kehittyvällä Kalasataman alueella, lähes metroaseman vieressä.
Kulkuyhteydet
Metro, bussit
Muuta
Katso lisää kohteita kotisivujemme www.senaatinnotariaatti.fi hakukoneesta, sivustolta löytyy myös kohteita joita ei ole yleisessä jakelussa. Tai soita meille suoraan puh. 09 7745 100 ja kerro tarkemmin tilatarpeistanne niin löydämme teille parhaan mahdollisen tarjolla olevan toimitilaratkaisun.
Vapautuu
Heti
Rakennusvuosi
2002
Kerros
5 / 6
Energiatehokkuusluokka
Ei lain edellyttämää energiatodistusta
Näkyvällä paikalla
Hissi
Lastauslaituri
Ota yhteyttä
Senaatin Notariaatti Oy LKV
Lämmittäjänkatu 4 A
FIN-00880 Helsinki
Tel:
Näytä puhelinnumero
+358 9 7745 100
Pyydä lisätietoa
