Vuokrataan toimistotilat - Helsinki
Vilhonvuorenkatu 12, Sörnäinen, 00540 Helsinki #10683681
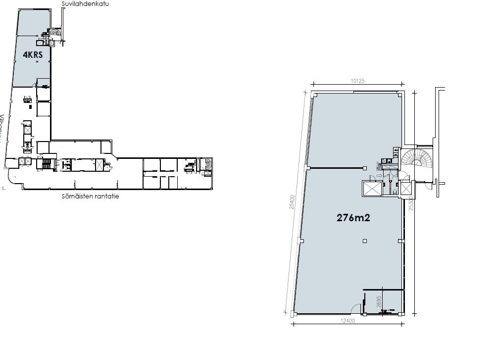
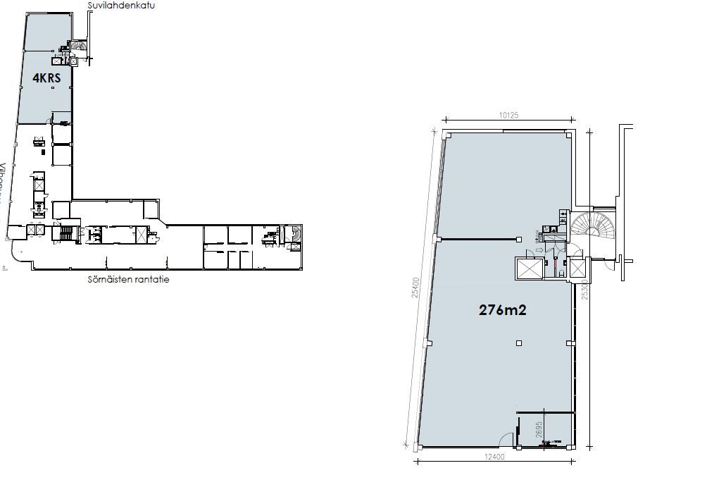
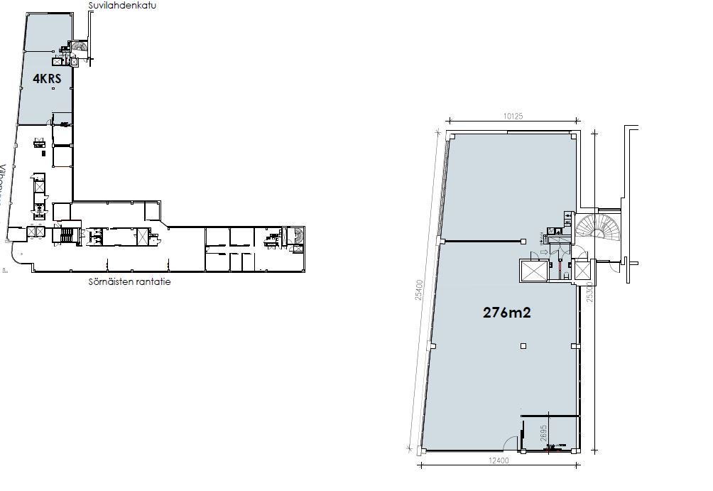
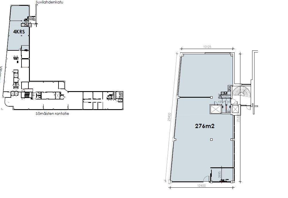
Muuttovalmis ja helposti asiakkaan tarpeen mukaan muokattavissakin oleva tila talon päädystä. Ohessa yleiskuvia kiinteistön tiloista.
Kalasataman Kummeli Business Parkin palvelut ovat käytettävissä. Erinomainen sijainti Sörnäisten, Kalasataman ja Suvilahden keskiössä. Metro ja REDI sijaitsevat kävelymatkan päässä.
Lisätietoja numerosta 020 7290 710. Lisää kohteita osoitteessa www.premises.fi.
Energialuokka C2007.Kerros: 4
Osoite
Vilhonvuorenkatu 12, 00540 Helsinki
Tilatyyppi
Toimistotilaa
278,5 m2
Kulkuyhteydet
Hyvät julkiset liikenneyhteydet. Kävelymatkan päässä on Sörnäisten ja Kalasatan metrosemat sekä useiden bussi- ja raitiovaunulinjojen pysäkkejä.
Ota yhteyttä
CRE PREMISES
Puh. Näytä puhelinnumero 020 7290 710
Vantaankoskentie 14
01670 VANTAA
Pyydä lisätietoa
