Vuokrataan liiketilat - Porvoo
Lundinkatu 12, 06100 Porvoo #10683216
Liiketila Porvoon parhaalta paikalta vuokrattavana! Vuokra: 4’990 €/kk + alv (sis. hoitovuokran)
Osoite
Lundinkatu 12, 06100 Porvoo
Tilatyyppi
Liiketilaa
495 m2
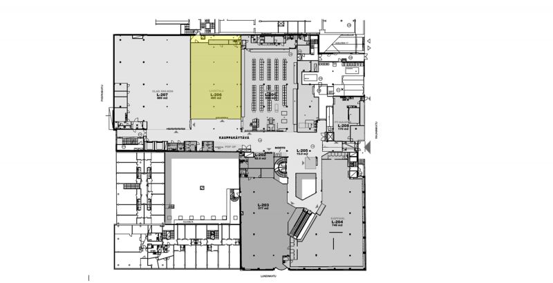
Pohjapiirros
Virtuaaliesittely
Vuokra
4’990 €/kk + alv (sis. hoitovuokran)
Muuta
Kauppakeskus Lundissa on vuokrattavana laadukas, erinomaisessa kunnossa oleva, noin 495 m²:n liiketila. Huoneisto on merkitty pohjakuvaan keltaisella värillä.
Tila on keskeisellä paikalla kauppakeskuksen toisessa kerroksessa. Rakennuksessa on sekä hissi että liukuportaat.
Myymälätilan käytävän puoleinen seinä on kokonaan lasia, joten näyteikkunatilaa riittää! Vuokralaisella on käytössään myös sosiaalitilat.
Kauppakeskus Lundi on Porvoon keskeisin kauppapaikka aivan torin laidalla! Vilkkaassa kauppakeskuksessa on kaksi isoa pysäköintihallia ja kadun vastakkaisella puolella on iso parkkipaikka.
Soita ja kysy lisää!
Kohdetiedot
Sijainti
Osoite: Lundinkatu 12, 06100 Porvoo
Kaupunginosa: Keskusta
Ympäristö: Keskustan ja kauppakeskuksen kaikki palvelut
Rakennus/huoneisto
Pinta-ala: 495 m² + mahdollisuus yhteisiin sosiaalitiloihin
Huoneistoselitelmä: Myymälätila
Kunto, varusteet ja palvelut: Erinomainen kunto, hyvä valaistus, isot näyteikkunat, hissi, liukuportaat
Kerros: 2. krs
Pysäköinti: Autohallissa, kadulla, pysäköintipaikalla
Vapautuu: Heti vapaa
Vuokrahinta ja kulut
Kuukausivuokra: 4’990 €/kk + alv (sis. hoitovuokran)
Sähkömaksu: Mittauksen mukaan
Vesimaksu: Sisältyy vuokraan
Lämmitys ja jäähdytys: Sisältyy vuokraan
Muut kulut: Kauppiasyhdistysmaksu
Tila on keskeisellä paikalla kauppakeskuksen toisessa kerroksessa. Rakennuksessa on sekä hissi että liukuportaat.
Myymälätilan käytävän puoleinen seinä on kokonaan lasia, joten näyteikkunatilaa riittää! Vuokralaisella on käytössään myös sosiaalitilat.
Kauppakeskus Lundi on Porvoon keskeisin kauppapaikka aivan torin laidalla! Vilkkaassa kauppakeskuksessa on kaksi isoa pysäköintihallia ja kadun vastakkaisella puolella on iso parkkipaikka.
Soita ja kysy lisää!
Kohdetiedot
Sijainti
Osoite: Lundinkatu 12, 06100 Porvoo
Kaupunginosa: Keskusta
Ympäristö: Keskustan ja kauppakeskuksen kaikki palvelut
Rakennus/huoneisto
Pinta-ala: 495 m² + mahdollisuus yhteisiin sosiaalitiloihin
Huoneistoselitelmä: Myymälätila
Kunto, varusteet ja palvelut: Erinomainen kunto, hyvä valaistus, isot näyteikkunat, hissi, liukuportaat
Kerros: 2. krs
Pysäköinti: Autohallissa, kadulla, pysäköintipaikalla
Vapautuu: Heti vapaa
Vuokrahinta ja kulut
Kuukausivuokra: 4’990 €/kk + alv (sis. hoitovuokran)
Sähkömaksu: Mittauksen mukaan
Vesimaksu: Sisältyy vuokraan
Lämmitys ja jäähdytys: Sisältyy vuokraan
Muut kulut: Kauppiasyhdistysmaksu
Vapautuu
Heti
Ota yhteyttä
Tilat.fi
KTM, LKV Antti Soivio
Näytä puhelinnumero
0400 446 553
OTM, LKV Riikka Tuominen
Näytä puhelinnumero
0400 551 790
KTM, LKV Maria-Sofia Puhakka
Näytä puhelinnumero
0400-150330
Yrityksen virallinen nimi: LKV Toimitilaa.fi Oy. Toimitilojen välitykseen erikoistunut yritys.
http://www.tilat.fiPyydä lisätietoa
