Vuokrataan toimistotilat - Helsinki
Bulevardi 6, Keskusta, 00120 Helsinki #10682467
Huippuosoitteessa Bulevardilla tarjolla toimistotilaa. Tilassa kuusi valoisaa huonetta sekä toimistokeittiö ja sosiaalitilat.
Osoite
Bulevardi 6, 00120 Helsinki
Tilatyyppi
Toimistotilaa
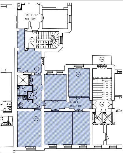
154,5 m2
Kiinteistö
Huippuosoitteessa Bulevardilla tarjolla toimistotilaa. Tilassa kuusi valoisaa huonetta sekä toimistokeittiö ja sosiaalitilat. Toimitilan ikkunat avaavat upean näkymän Bulevardille. Tilassa jäähdytetty koneellinen ilmastointi ja CAT6-tason tietoliikennevalmiudet.
Sijainti
Helsingin keskusta, Erottaja.
Pysäköinti
Q-Park Erottaja.
Palvelut
Keskustan alueen kaikki palvelut.
Kulkuyhteydet
-Raitiovaunu
-Bussi
-Metro
-Bussi
-Metro
Vapautuu
01.07.2026
Kerros
4
Energiatehokkuusluokka
Ei lain edellyttämää energiatodistusta
Näkyvällä paikalla
Hissi
Ota yhteyttä
REALIUM OY LKV
Tammasaarenkatu 1, 00180 Helsinki
Vaihde:
Näytä puhelinnumero
010 326 346
Tuomo Mäkelä
tuomo.makela@realium.fi
p.
Näytä puhelinnumero
044 050 1158
Joel Keto
joel.keto@realium.fi
p.
Näytä puhelinnumero
045 317 0330
KAIKKI TILAVAIHTOEHDOT KERRALLA!
SOITA - MEILAA JA TILAA NÄYTTÖ!
Ilmainen palvelu tilanhakijoille.
Kartoitamme parhaat tilavaihtoehdot.
Kaikki kohteet eivät ole netissä.
Pyydä lisätietoa
