Kohteesta ei kuvia
Vuokrataan tuotantotilat - Helsinki
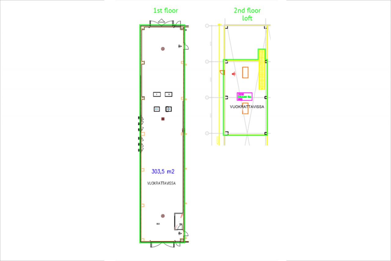
Rahtarinkatu 5, Vuosaari, 00980 Helsinki #10682124
Vuosaaren Rahtarinpuisto
Kerroksia rakennuksessa on 2.
Lämmitysmuoto on .
Habita Finland Oy
Elimäenkatu 17-19 , 00510 Helsinki
Näytä puhelinnumero
+358 10 585 5005
Timo Ahonen
Näytä puhelinnumero
+358 50 4200017
## Toimitilojen osto, myynti ja vuokraus
Habita Toimitilat on aktiivinen toimitilavälittäjä, joka myy ja vuokraa toimitiloja, sekä etsii sijoituskohteita asiakkailleen. Pääkonttorimme sijaitsee Helsingissä.
## Habitan toimitilavälitys
Palvelemme tehokkaasti myös Helsingin, Espoon, Vantaan ja muun pääkaupunkiseudun ulkopuolella, sillä laaja konttoriverkostomme kattaa koko maan. Jokaisesta Habitan toimipisteestä löytyy palveleva toimitila-ammattilainen, jolta löytyy kokemus ja asiantuntemus erityisesti toimitilojen välityksestä. Tule käymään toimistollamme tai soita, niin löydämme sinulle parhaat toimitilat.
