Vuokrataan toimistotilat - Oulu
Kirkkokatu 19 A16, 90100 Oulu #10679291
Vuokrataan Rotuaarilta aivan keskustan ytimestä siistiä toimistotilaa!
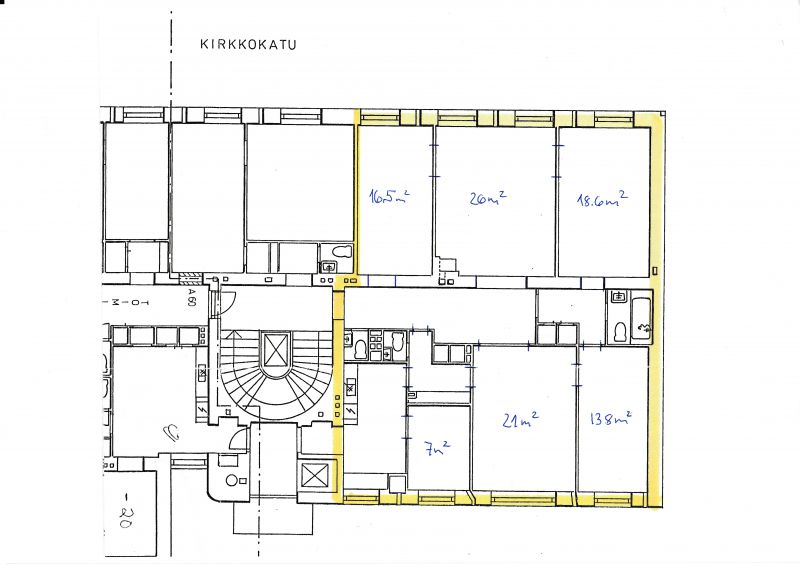
5. kerroksen huoneisto sisältää 6 erillishuonetta, sekä keittiön sosiaalitiloineen. Huoneistossa on atk-sisäverkko.
Osoite
Kirkkokatu 19 A16, 90100 Oulu
Tilatyyppi
Toimistotilaa
151 m2
Pohjapiirros
Vuokra
1.950€/kk, ei lisätä alvia
Vuokraan sisältyy lämpö
Sijainti
Ydinkeskusta
Pysäköinti
Kallioparkki ja P-talot
Kulkuyhteydet
Bussit Torikatua pitkin
Vapautuu
01.05.2025
Kerros
5 / 5
Energiatehokkuusluokka
D2018
E-luku
185 kWhE/m²/vuosi
Näkyvällä paikalla
Ota yhteyttä
Pohjois-Suomen Toimitilat Oy
Sepänkatu 20, 90100 Oulu
Pekka Valkola
Näytä puhelinnumero
044 311 0555
Pyydä lisätietoa
