Vuokrataan toimistotilat, varastotilat - Kuopio
Siunauskappelintie 2, 70110 Kuopio #10678952
LOISTAVA SIJAINTI!
Vuokrataan edullista toimisto ja varastotilaa Kuopiossa keskeisellä paikalla 5-tien varrella. 1.krs varastotiloihin pakettiautolla sisään, lastaus-/purku mahdollista tehdä sisätiloissa.
Osoite
Siunauskappelintie 2, 70110 Kuopio
Tilatyyppi
Toimistotilaa
79,5 m2
Varastotilaa
273 m2
Yhteensä
79,5 - 352,5 m2
Kiinteistö
2 kerroksinen rakennus. Avotilaa ja huoneita. Voidaan räätälöidä tarpeen mukaan. Tiloissa viilennys.
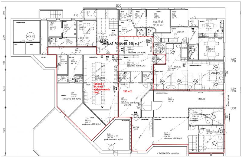
Pohjakerroksessa vuokrattavissa:
Tila 1 110m2 Toimisto. 1.400 eur/kk
Tila 2 91,5 + 26m2 Toimisto/ varasto. 1.050 eur/kk
Tila 3 143,5 + 26 m2 Varasto 1.520 eur/kk
Tila 4 41 + 26m2 Toimisto/ varasto. 670 eur/kk
Tiloilla 2, 3, 4 on yhteiskäytössä varasto/lastaustila 79m2.
Jyvitys á 26 m2 per tila.
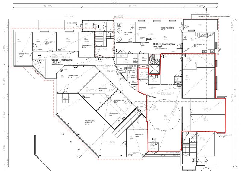
1. kerroksessa vuokrattavissa:
Toimisto 214,5 m2 , vuokra 2.365 eur/kk
Vuokra sisältää lämmityksen, jne.
Vuokralainen vastaa sähköstä, vedestä tarpeen mukaan
Alv. lisätään vuokraan.
Pohjakerroksessa vuokrattavissa:
Tila 1 110m2 Toimisto. 1.400 eur/kk
Tila 2 91,5 + 26m2 Toimisto/ varasto. 1.050 eur/kk
Tila 3 143,5 + 26 m2 Varasto 1.520 eur/kk
Tila 4 41 + 26m2 Toimisto/ varasto. 670 eur/kk
Tiloilla 2, 3, 4 on yhteiskäytössä varasto/lastaustila 79m2.
Jyvitys á 26 m2 per tila.
1. kerroksessa vuokrattavissa:
Toimisto 214,5 m2 , vuokra 2.365 eur/kk
Vuokra sisältää lämmityksen, jne.
Vuokralainen vastaa sähköstä, vedestä tarpeen mukaan
Alv. lisätään vuokraan.
Sijainti
Kiinteistö sijaitsee Kuopion keskustasta pohjoiseen, viitostien vieressä, osoitteessa Siunauskappelintie 2.
Pysäköinti
Tontilla 36 autopaikkaa.
Vapautuu
Heti
Rakennusvuosi
1985
Saneerausvuosi
2007
Ota yhteyttä
Conorin
Toimitilojen vuokraus ja myynti
Näytä puhelinnumero
09 - 612 2230
Toimisto
Valimotie 17-19
Helsinki
Kaikki vapaat tilamme:
vapaat.toimitilat.fi/conorin
Pyydä lisätietoa
