Vuokrataan toimistotilat - Helsinki
Valimotie 9-11, Pitäjänmäki, 00380 Helsinki #10676258
Siistiä toimistotilaa hyvien liikenneyhteyksien varrelta.
Osoite
Valimotie 9-11, 00380 Helsinki
Tilatyyppi
Toimistotilaa
687 m2
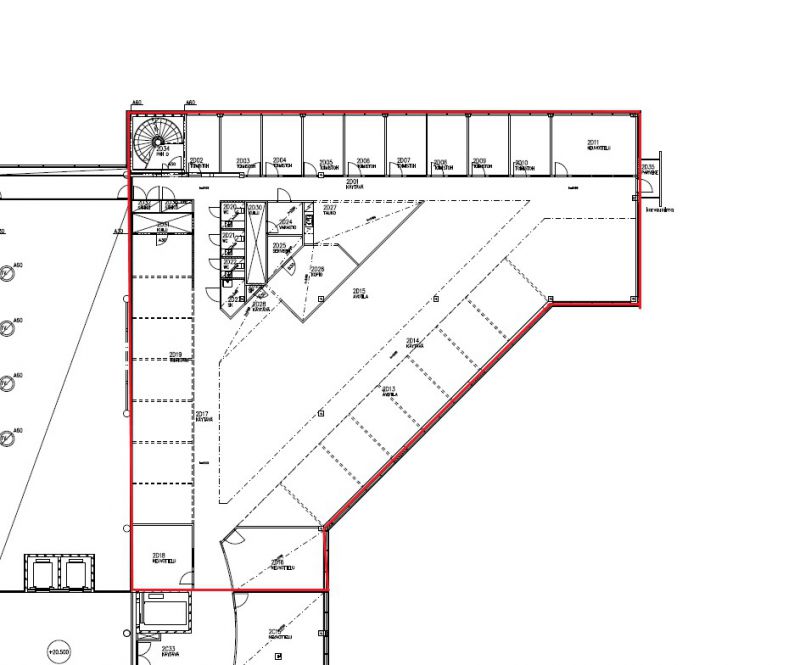
Pohjapiirros
Kiinteistö
Siistiä toimistotilaa hyvien liikenneyhteyksien varrelta. Pitäjänmäessä sijaitseva Valimotie 9-11 tarjoaa yrityksille modernit puitteet ja monipuoliset palvelut. Talossa on aulapalvelu, vuokrattavia neuvottelutiloja, saunaosasto, laadukas lounasravintola ja catering-palvelut.
Tämä 687 m2 toimistotila sijaitsee kiinteistön 2. kerroksessa. Toimistossa on avotilaa, huoneita, keittiöpiste sekä omat wc-tilat. Erikoisuutena toimistoon kuuluu myös oma parveke.
Tämä 687 m2 toimistotila sijaitsee kiinteistön 2. kerroksessa. Toimistossa on avotilaa, huoneita, keittiöpiste sekä omat wc-tilat. Erikoisuutena toimistoon kuuluu myös oma parveke.
Vapautuu
Heti
Kerros
2
Energiatehokkuusluokka
Ei lain edellyttämää energiatodistusta
Katutasossa
Näkyvällä paikalla
Ota yhteyttä
ScanReal Oy LKV
Opus Business Park
Hitsaajankatu 24
00810 Helsinki
info@scanreal.fi
Puh:
Näytä puhelinnumero
020 730 8830
Sopivat toimitilat yhdellä otolla!
Kartoitamme toimitilatarpeesi ja etsimme yrityksellesi parhaiten sopivat vapaat toimitilat. Koska vuokranantajat maksavat palvelumme, on tämä yrityksellesi veloituksetonta.
OTA YHTEYTTÄ - SOVI NÄYTTÖ!
Kaikki kohteemme eivät ole netissä, kerro tilatarpeesi niin kartoitamme vaihtoehdot.
Palvelumme on tilanhakijalle ilmainen
Pyydä lisätietoa
