Vuokrataan toimistotilat - Helsinki
Salmisaarenaukio 1, Salmisaari, 00180 Helsinki #10675827
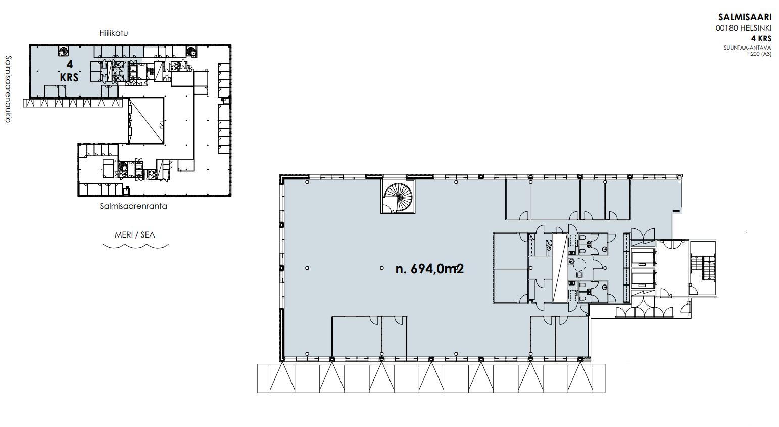
Pääkonttoritason toimisto meren äärellä Salmisaaressa.
Tilat on varustettu korkeatasoisilla materiaaleilla sekä uusimmalla talotekniikalla. Tilat räätälöidään uudelle käyttäjälle sopivaksi. Kiinteistössä on aulapalvelu, neuvottelutiloja, lounasravintola sekä sosiaalitilat työmatkapyöräilijöille.
Pysäköintitilat ajoneuvoille ja polkupyörille sijaitsevat maanalaisessa lämmitetyssä parkkihallissa. Ruoholahden metroasemalle on bussikuljetus talon edestä 5-min välein, myös kaupunkipyöräasema palvelee lähikorttelissa. Ota yhteyttä ja sovi esittely, vuokrauspalvelumme on tilanhakijoille maksuton.
Näkyvällä paikalla
Jaettavissa
Hissi
Senaatin Notariaatti Oy LKV
Lämmittäjänkatu 4 A
FIN-00880 Helsinki
Tel:
Näytä puhelinnumero
+358 9 7745 100
