Vuokrataan liiketilat - Mäntyharju
Savontie 2, Keskusta Mäntyharju, 52700 Mäntyharju #10674600
Liiketilaa Mäntyharjun keskustassa.
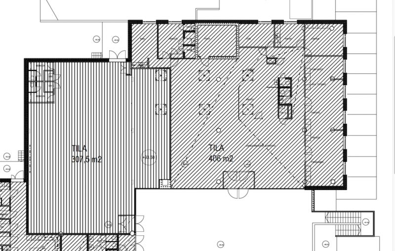
Kiinteistössä on vapaana yhteensä 1176,5m2 liiketilaa, joka jakautuu kahteen kerrokseen. Ylemmässä kerroksessa sijaitsevat 307,5m2 ja 406m2 kokoiset avarat liiketilat, joihin on lastausyhteys kiinteistön takaosasta ja kulkuyhteys suoraan piha-alueelta. Alemmassa kerroksessa on 463m2 kokoinen ikkunaton liiketila, joka on aikaisemmin toiminut päivittäistavarakauppana. Tästä liiketilasta 78 m2 on korotettua tilaa. Liiketilat voidaan vuokrata joko yhdessä tai erikseen.
Savontie 2 on liikekiinteistö Mäntyharjun keskustassa, aivan torin kupeessa. Kiinteistössä toimivat tällä hetkellä Bar Noste ja Tarjan Muotipuoti. Lähistöllä on mm. päivittäistavarakauppoja, tavaratalo, pankki, apteekki ja useita ravintoloita.
Kysy lisää numerosta 044 723 4700 tai info@bref.fi. Palvelumme on tilanhakijoille ilmainen.
Bureau Real Estate Finland Oy
Lars Sonckin kaari 16, 02600 Espoo
Näytä puhelinnumero
0447234700
Bureau Real Estate Finland Oy
https://www.bref.fi