Vuokrataan toimistotilat - Espoo
Linnoitustie 4, Leppävaara, 02600 Espoo #10673364
Korkeatasoista ja avaraa toimistotilaa Quartetto Business Parkissa, Leppävaarassa.
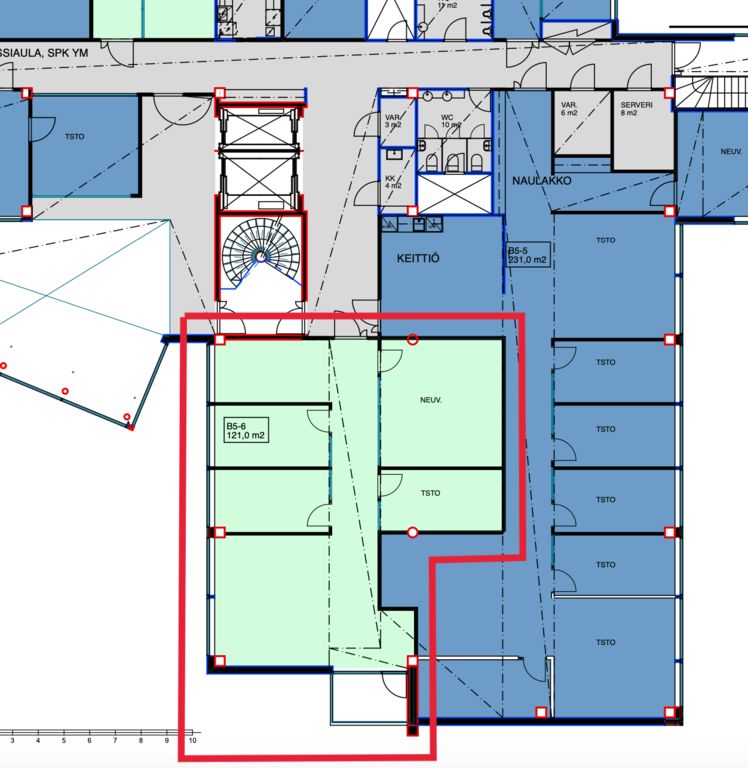
Tämä 121m2 toimistotila sijaitsee 5. kerroksessa. Tila koostuu avotilasta ja huoneista. Sosiaalitilat ovat yhteiskäyttöiset muun kerroksen kanssa. Tälle tilalle tulee yhteiskäyttötiloista jyvityksiä vielä 27,5m2.
Quartetto Business Park koostuu yhdeksästä eri toimistorakennuksesta, jotka ovat valmistuneet vuosina 2001-2012. Kiinteistöistä löytyvät kattavat palvelut yrityksen liiketoiminnan tueksi. Quartetto sijaitsee erinomaisella paikalla ja se on helposti saavutettavissa niin omalla autolla kuin julkisella liikenteellä. Business Parkilla on myös runsaasti autohallipaikkoja.
Kysy lisää numerosta 044 723 4700 tai info@bref.fi. Palvelumme on tilanhakijoille ilmainen.
Hissi
Bureau Real Estate Finland Oy
Lars Sonckin kaari 16, 02600 Espoo
Näytä puhelinnumero
0447234700
Bureau Real Estate Finland Oy
https://www.bref.fi