Vuokrataan toimistotilat - Helsinki
Itämerenkatu 1, Ruoholahti, 00180 Helsinki #10672221
Muuntojoustavaa hyväkuntoista toimistotilaa Ruoholahden Kampin puoleisessa päässä Mechelininkadun kulmassa. Kiinteistössä vastaanotto- ja aulapalvelu, ravintola, neuvottelumaailma, edustus- ja saunatilat katolla, kuntosali sekä autohalli. Huom! Kuvat ovat esimerkkejä kiinteistön yleisestä tasosta. Ota yhteyttä ja sovi esittely, vuokrauspalvelumme on tilanhakijoille maksuton.
Osoite
Itämerenkatu 1, 00180 Helsinki
Tilatyyppi
Toimistotilaa
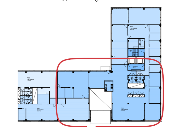
417 m2
Pohjapiirros
Kiinteistö
Kiinteistössä aulapalvelu, ravintola, neuvottelumaailma, edustus- ja saunatilat katolla, kuntosali sekä autohalli.
Pysäköinti
Autohallissa alueeseen suhteutettuna runsaasti edullista pysäköintitilaa.
Palvelut
Erinomaiset
Kulkuyhteydet
Metro, bussit, ratikat
Vapautuu
Heti
Kerros
3 / 9
Energiatehokkuusluokka
Ei lain edellyttämää energiatodistusta
Hissi
Ota yhteyttä
Senaatin Notariaatti Oy LKV
Lämmittäjänkatu 4 A
FIN-00880 Helsinki
Tel:
Näytä puhelinnumero
+358 9 7745 100
Pyydä lisätietoa
