Vuokrataan toimistotilat - Oulu
Tyrnäväntie 12, Limingantulli, 90400 Oulu #10671208
Osoite
Tyrnäväntie 12, 90400 Oulu
Tilatyyppi
Toimistotilaa
176 m2
Vuokra
2200
Muuta
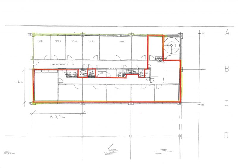
Vuokrataan 2. krs:n hyväkuntoista toimistotilaa n. 176 m2 os. Tyrnäväntie 12, 90400 Oulu.
6 toimistohuonetta, kahvitila ja suuri eteisaulatila, 2 wc-tilaa, serveritila ja siivouskomero.
Huoneistossa on koneellinen tulo- ja poistoilmanvaihto ja atk-verkko.
Heti vapaa.
Vuokra 2.200,-/kk (+alv.).
Vuokra sidotaan elinkustannusindeksiin, tarkistus kerran vuodessa.
Lisäksi käyttösähkö- ja vesimaksu kulutuksen mukaan.
Pihalta (Prisman puoleinen parkkipaikka) on vuokrattavissa 4 kpl sähköpistokkeellista autopaikkaa 25,-/kpl/kk + 3 kpl ilman pistoketta 15,-/kpl/kk.
Kiinteistön edessä asiakaspysäköintipaikkoja kiekolla.
6 toimistohuonetta, kahvitila ja suuri eteisaulatila, 2 wc-tilaa, serveritila ja siivouskomero.
Huoneistossa on koneellinen tulo- ja poistoilmanvaihto ja atk-verkko.
Heti vapaa.
Vuokra 2.200,-/kk (+alv.).
Vuokra sidotaan elinkustannusindeksiin, tarkistus kerran vuodessa.
Lisäksi käyttösähkö- ja vesimaksu kulutuksen mukaan.
Pihalta (Prisman puoleinen parkkipaikka) on vuokrattavissa 4 kpl sähköpistokkeellista autopaikkaa 25,-/kpl/kk + 3 kpl ilman pistoketta 15,-/kpl/kk.
Kiinteistön edessä asiakaspysäköintipaikkoja kiekolla.
Vapautuu
Kysy
Kerros
2
Ota yhteyttä
Catella Property Oy
Kirkkokatu 6, 5. krs, 90100 OULU
Näytä puhelinnumero
010 5220 100
Pekka Laurila-Harju
Näytä puhelinnumero
010 5220 603
Pyydä lisätietoa
