Vuokrataan toimistotilat - Helsinki
Sentnerikuja 1, Lassila, 00440 Helsinki #10670698
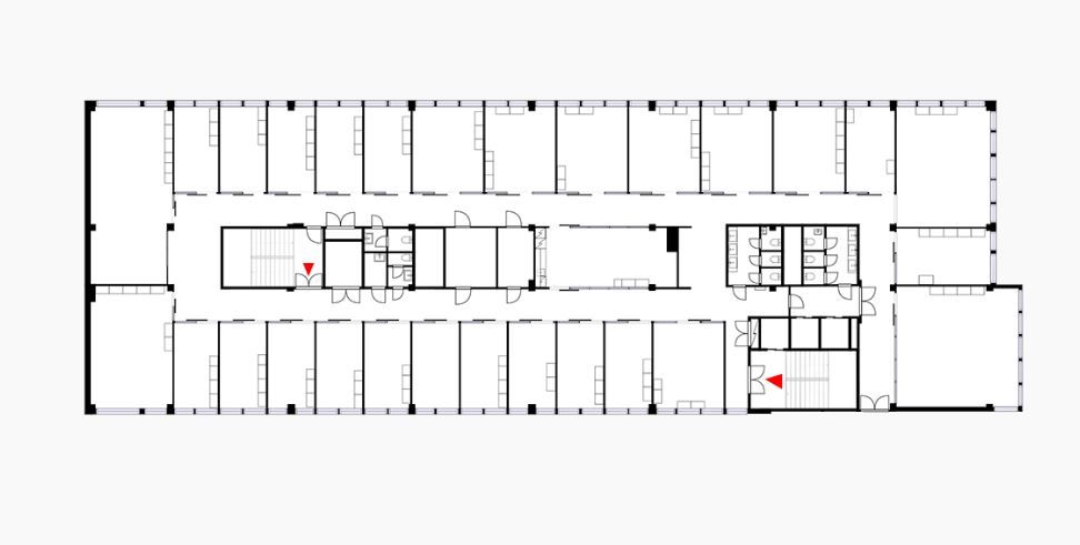
Ylimmän kerroksen toimistohuoneisto Helsingin Lassilassa. Tilat ovat joustavasti muokattavissa yhdelle organisaatiolle tai tarpeen mukaan yhdistettävissä 4. kerroksen kanssa.
Sisääntulokerroksessa on aulapalvelupiste, kokouskeskus, saunaosasto sekä pienvarastoja. Kiinteistön pihalla on pysäköintipaikkoja, samoin viereisessä pysäköintitalossa vuokrapaikkoja.
Lisätiedot ja kohde-esittelyt 020 7290 710, lisää kohteita premises.fi .
Kohteella ei ole lain edellyttämää energiatodistusta tai energialuokka ei tiedossa.Kerros: 5
Osoite
Sentnerikuja 1, 00440 Helsinki
Tilatyyppi
Toimistotilaa
2474 - 910 m2
Kulkuyhteydet
Loistavat liikenneyhteydet niin autolla kuin junalla liikkuville. Kiinteistö sijaitsee Vihdintien ja Kehä I:n välittömässä läheisyydessä, lyhyen kävelymatkan päässä Pohjois-Haagan juna-asemasta.
Ota yhteyttä
CRE PREMISES
Puh. Näytä puhelinnumero 020 7290 710
Vantaankoskentie 14
01670 VANTAA
Pyydä lisätietoa
