Vuokrataan toimistotilat - Helsinki
Vilhonvuorenkatu 11/Sörnäisten Rantatie 27, Sörnäinen, 00500 Helsinki #10669565
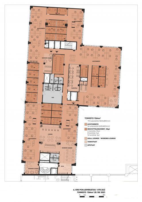
Vuokrattavana avaraa, valoisaa, edustavaa toimistotilaa.
Osoite
Vilhonvuorenkatu 11/Sörnäisten Rantatie 27, 00500 Helsinki
Tilatyyppi
Toimistotilaa
1364 m2
Tilajako
Jaettavissa
Kiinteistö
Vuokrattavana avaraa, valoisaa, edustavaa toimistotilaa. Tila on mahdollista jakaa useammalle käyttäjälle.
Sijainti
Sörnäinen, Helsinki
Pysäköinti
Sisäpihalla ja pohjakerroksen parkkihallissa on vuokralaislle varattua pysäköintitilaa.
Palvelut
Vähittäiskauppa ja lounasravintoloita lähellä.
Kulkuyhteydet
-Bussi
-Metro
-Oma auto
-Metro
-Oma auto
Vapautuu
Heti
Kerros
6
Energiatehokkuusluokka
Ei lain edellyttämää energiatodistusta
Näkyvällä paikalla
Jaettavissa
Hissi
Ota yhteyttä
REALIUM OY LKV
Tammasaarenkatu 1, 00180 Helsinki
Vaihde:
Näytä puhelinnumero
010 326 346
Tuomo Mäkelä
tuomo.makela@realium.fi
p.
Näytä puhelinnumero
044 050 1158
Joel Keto
joel.keto@realium.fi
p.
Näytä puhelinnumero
045 317 0330
KAIKKI TILAVAIHTOEHDOT KERRALLA!
SOITA - MEILAA JA TILAA NÄYTTÖ!
Ilmainen palvelu tilanhakijoille.
Kartoitamme parhaat tilavaihtoehdot.
Kaikki kohteet eivät ole netissä.
Pyydä lisätietoa
