Vuokrataan toimistotilat - Espoo
Piispanmäentie 5, Piispanmäki, 02240 Espoo #10665747
Hyväkuntoinen ja nykyaikainen avo- ja huonetoimistotila Espoon Piispanmäessä.
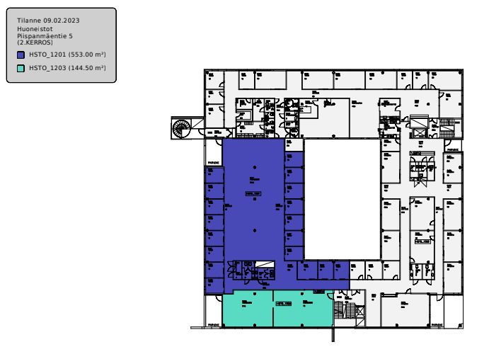
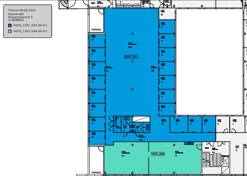
Kiinteistön ensimmäisessä kerroksessa sijaitsevat vastaanotto, ravintola sekä neuvottelutilat. Toisessa ja kolmannessa kerroksessa hyvää modernia avo- ja huonetoimistoa. Ylimmässä kerroksessa sijaitsevat neuvottelutila sekä edustus- ja saunatilat. Kiinteistön pihalla on vuokrattavissa parkkipaikkoja.
Lisätietoja numerosta 020 7290 710. Lisää kohteita osoitteessa premises.fi.
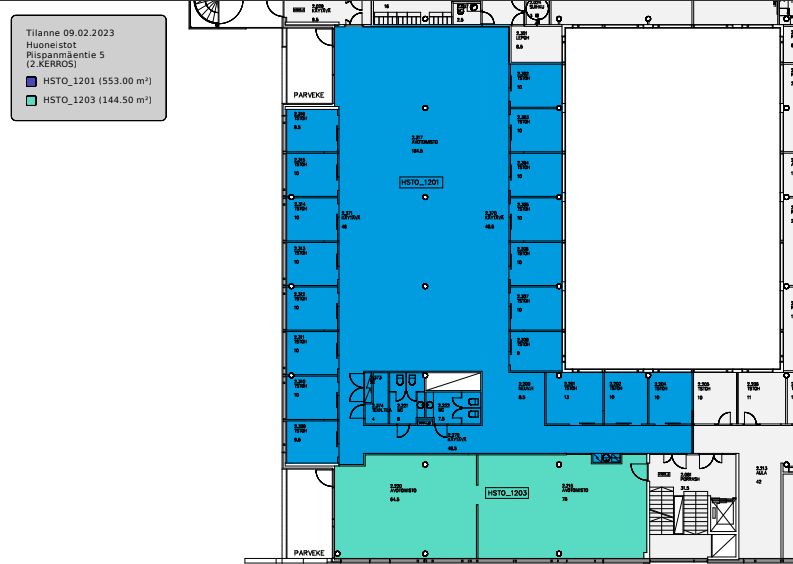
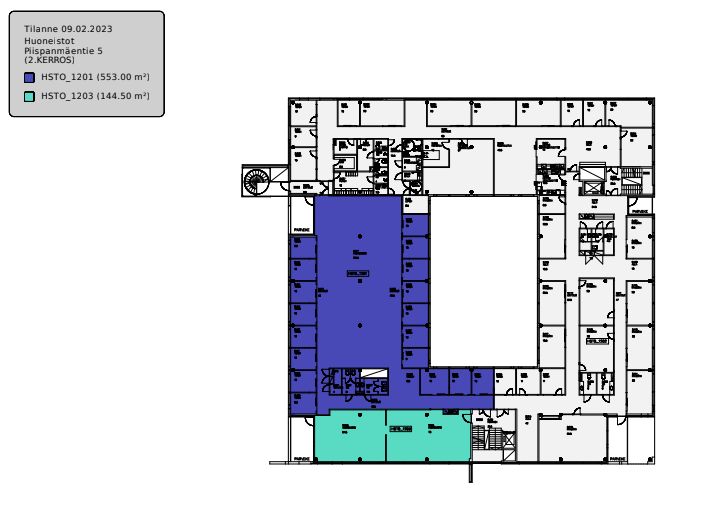
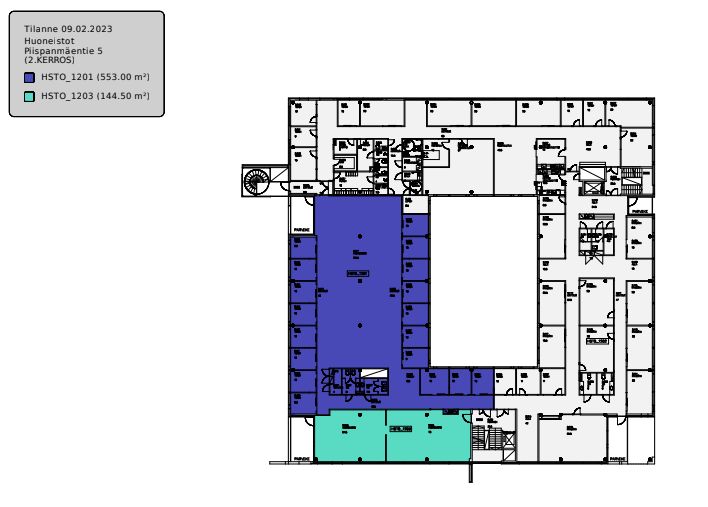
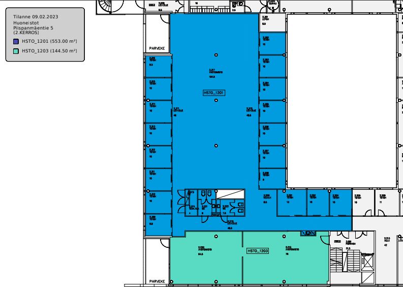
Energialuokka F.Kerros: 2
Osoite
Piispanmäentie 5, 02240 Espoo
Tilatyyppi
Toimistotilaa
697,5 m2
Kulkuyhteydet
Kohde sijaitsee Länsiväylän varrella Espoon Piispanmäessä. Lähellä kulkee myös Kehä II.
Liitetiedostot
Ota yhteyttä
CRE PREMISES
Puh. Näytä puhelinnumero 020 7290 710
Vantaankoskentie 14
01670 VANTAA
Pyydä lisätietoa
