Vuokrataan liiketilat - Helsinki
Mustalahdentie 4, Vuosaari, 00960 Helsinki #10664824
Katutason liiketila. Vapautuu sopimuksen mukaan
Osoite
Mustalahdentie 4, 00960 Helsinki
Tilatyyppi
Liiketilaa
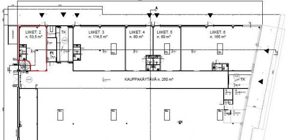
59 m2
Kiinteistö
Pohjoisen Vuosaaren ostoskeskuksen uudesta osasta liiketila. S-market samassa kiinteistössä. Käynti suoraan kadulta, tai kauppakäytävältä, tilassa taukotila/K ja WC.
Pysäköinti
Kiinteistön pihalla
Palvelut
Vuosaaren Pohjoisen ostoskeskuksen palvelut
Vapautuu
10.01.2023
Kerros
1
Ota yhteyttä
TopReal
Hietalahdenranta 17 B, 00180 Helsinki
Näytä puhelinnumero
09 6227 7852
Soita ja kysy lisää, tai tutustu www-sivuihimme!
http://www.topreal.fiPyydä lisätietoa
