Vuokrataan toimistotilat - Helsinki
Kiviaidankatu 2, Lauttasaari, 00210 Helsinki #10660449
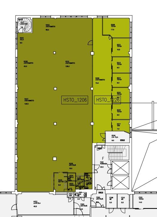
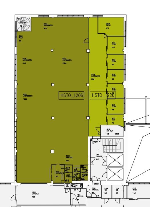
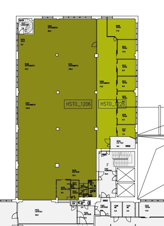
Vuokrataan avara ja valoisa teollisuushenkinen toimistotila Lauttasaaresta. Tämä toimitila on vuokraushetkellä remontoitu ja siistissä kunnossa, mm. wc:t on uusittu. Nykymuodossaan tila sisältää ison avotyötila ja työhuoneita. Tilaratkaisua voidaan muokata tulevan käyttäjän toiveiden mukaan.
Toimistotilat ovat muokattavissa ja remontoitavissa yrityksesi yksilöllisiin tarpeisiin. Monipuolista toimistotilaa erilaisille ja erikokoisille yrityksille, mahdollista muokata tilat esimerkiksi avotoimistoksi, tai pienempiin työhuoneisiin ja kokoushuoneisiin. Kiinteistöstä on mahdollisuus vuokrata varastotilaa, sekä mahdollisuus vuokrata tilaa myymälälle, kiinteistöstä löytyy myös tavarahissi.
Kiviaidankatu on helposti saavutettavissa niin julkisilla kuin autollakin. Länsimetro tekee työmatkan sujuvaksi useasta eri suunnasta ja lähin asema löytyy alle kilometrin päästä kiinteistöstä. Kiinteistön lähelle kulkevat myös bussit metroasemalta. Rakennuksessa on päivittäistavarakauppa ja lähistöltä löytyy useita eri lounasravintoloita jokaiseen makuun.
Lisätietoja saat numerosta 020 7290 710. Lisää kohteita osoitteessa premises.fi.
Energialuokka E.Kerros: 2
Liitetiedostot
CRE PREMISES
Puh. Näytä puhelinnumero 020 7290 710
Vantaankoskentie 14
01670 VANTAA
