Vuokrataan toimistotilat - Helsinki
Atomitie 2, Pitäjänmäki, 00370 Helsinki #10657933
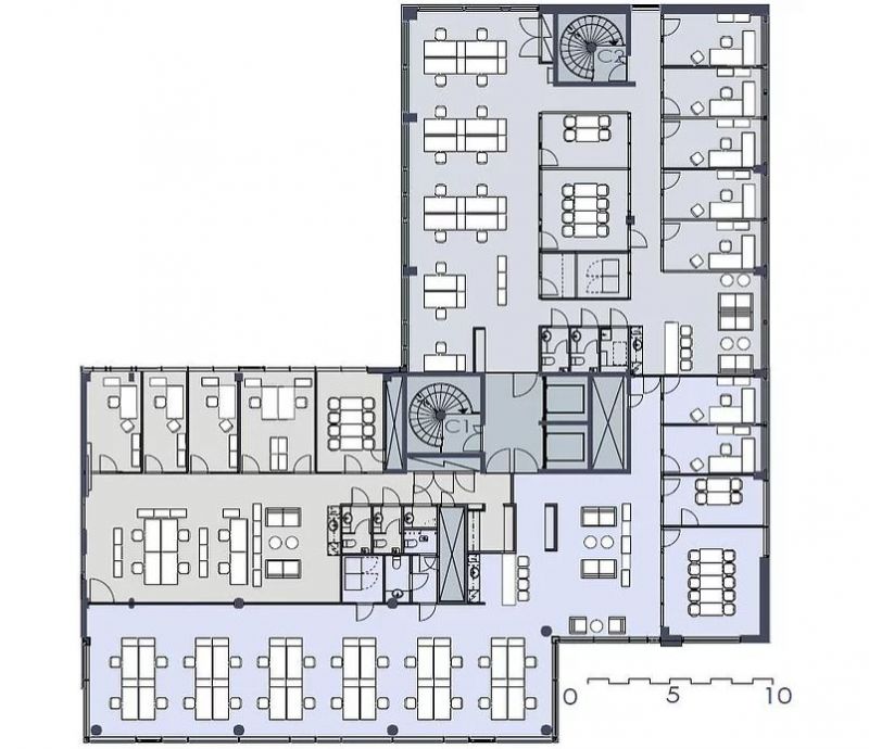
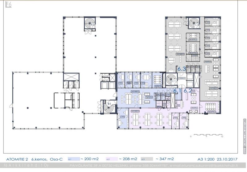
Bolero on nykyaikainen ja viihtyisä toimistokeskus näkyvällä sijainnilla Pitäjänmäentien varrella. Talossa on vastaanotto- ja aulapalvelu, lounasravintola, neuvottelutilat, kuntosali ym. oheispalveluita, sekä runsaasti pysäköintitilaa myös sähköautoille. Toimistotilat räätälöidään yksilöllisesti käyttäjän tarpeiden mukaan. Tämä viidennen kerroksen valoisa 1500m2 toimistotilakokonaisuus tarjoaa viihtyisän työympäristön noin 40-120:lle hengelle. Tilat on jaettavissa alkaen 500m2 sosissa. Talon maanalaisessa kerroksessa on lämmin autohalli, kiinteistöllä on lisäksi parkkitalo sekä pihapysäköintipaikkoja. Juna-asema sijaitsee talon edessä. Ota yhteyttä ja sovi esittely, palvelumme on tilanhakijoille ilmainen. Puh: 09 7745 100.
Näkyvällä paikalla
Hissi
Liitetiedostot
Senaatin Notariaatti Oy LKV
Lämmittäjänkatu 4 A
FIN-00880 Helsinki
Tel:
Näytä puhelinnumero
+358 9 7745 100
