Vuokrataan toimistotilat - Helsinki
Sentnerikuja 1, Lassila, 00440 Helsinki #10657231
Vuokrattavat toimitilat sijaitsevat muutaman minuutin kävelymatkan päässä Lassilan juna-asemasta. Sisääntulokerroksessa on mm. ravintolatila, varastotilaa sekä pukuhuoneet. Ota yhteyttä ja sovi esittely, palvelumme on tilanhakijoille ilmainen.
Osoite
Sentnerikuja 1, 00440 Helsinki
Tilatyyppi
Toimistotilaa
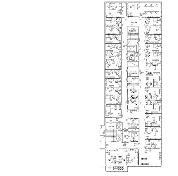
910 m2
Tilajako
Jaettavissa
Laajennettavissa 2474m2
Pohjapiirros
Kiinteistö
Vuonna 1977 valmistunut rakennus on peruskorjattu 2006. Kiinteistössä on neuvottelukeskus, ruokala, sauna-/edustustilat sekä mahdollisuus aulavastaanottopalvelulle.
Pysäköinti
Omallalla pihalla 70 parkkipaikka ja vastapäätä olevasta parkkitalosta saatavana tarvittaessa lisää pysäköintitilaa.
Kulkuyhteydet
Bussit, Juna.
Muuta
Avaa kiinteistöesite PDF -liitetiedostosta.
Vapautuu
Heti
Rakennusvuosi
1977
Saneerausvuosi
2006
Kerros
5 / 5
Energiatehokkuusluokka
Ei lain edellyttämää energiatodistusta
Jaettavissa
Hissi
Liitetiedostot
Ota yhteyttä
Senaatin Notariaatti Oy LKV
Lämmittäjänkatu 4 A
FIN-00880 Helsinki
Tel:
Näytä puhelinnumero
+358 9 7745 100
Pyydä lisätietoa
