Vuokrataan varastotilat - Helsinki
Lönnrotinkatu 11, Keskusta, 00120 Helsinki #10653385
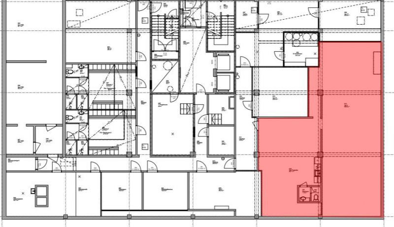
Vuokrattavana varastotilaa, joka sijaitsee kellarikerroksessa.
Osoite
Lönnrotinkatu 11, 00120 Helsinki
Tilatyyppi
Varastotilaa
148,5 m2
Kiinteistö
Vuokrattavana varastotilaa, joka sijaitsee kellarikerroksessa. Tilassa on omat wc-tilat ja pieni keittiö, ei ole ikkunoita. Tila soveltuu myös studioksi.
Sijainti
Helsinki, keskusta.
Pysäköinti
Autopaikat kellarissa sekä pihalla.
Palvelut
Keskustan palvelut.
Kulkuyhteydet
Raitiovaunu, metro, bussi lähellä.
Juna-asema 1km.
Juna-asema 1km.
Vapautuu
Heti
Kerros
kellari
Energiatehokkuusluokka
Ei lain edellyttämää energiatodistusta
Ota yhteyttä
REALIUM OY LKV
Tammasaarenkatu 1, 00180 Helsinki
Vaihde:
Näytä puhelinnumero
010 326 346
Tuomo Mäkelä
tuomo.makela@realium.fi
p.
Näytä puhelinnumero
044 050 1158
Joel Keto
joel.keto@realium.fi
p.
Näytä puhelinnumero
045 317 0330
KAIKKI TILAVAIHTOEHDOT KERRALLA!
SOITA - MEILAA JA TILAA NÄYTTÖ!
Ilmainen palvelu tilanhakijoille.
Kartoitamme parhaat tilavaihtoehdot.
Kaikki kohteet eivät ole netissä.
Pyydä lisätietoa
