Vuokrataan toimistotilat - Helsinki
Salomonkatu 17, Kamppi, 00100 Helsinki #10653042
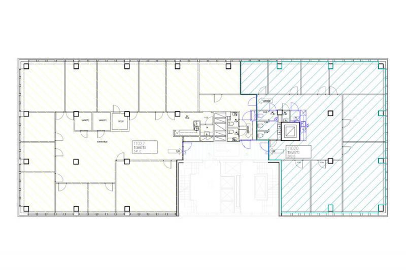
Vuokrataan vuonna 2015 peruskorjatusta kiinteistöstä siistikuntoista muuntojoustavaa huoneisiin ja avotilaan jaettua toimistotilaa 11:stä kerroksesta upeilla näkymillä kattojen yli. Tilassa on ilmastointi ja kokonaisuus 550 m2 voidaan jakaa kahteen osaan, esim. n. 341 m2 ja 209 m2. Huom! sisäkuvat ovat yleiskuvia eivätkä välttämättä kyseisestä toimistotilasta. Ota yhteyttä ja sovi esittely, palvelumme on tilanhakijoille ilmainen.
Osoite
Salomonkatu 17, 00100 Helsinki
Tilatyyppi
Toimistotilaa
209 m2
Tilajako
Jaettavissa
341m2/209m2
Pohjapiirros
Kiinteistö
Kiinteistö Helsingin Autotalo peruskorjattu ja talotekniikka uudistettu.
Sijainti
Kamppi
Pysäköinti
Oma autohalli ja pyöräparkki.
Palvelut
Kampin kauppakeskus 150 metriä.
Kulkuyhteydet
Metron, keskusbussiaseman ja useiden raitiovaunulinjojen vieressä sekä juna-asema kävelymatkan päässä.
Vapautuu
Heti
Saneerausvuosi
2015
Kerros
11
Energiatehokkuusluokka
E2013
Näkyvällä paikalla
Jaettavissa
Hissi
Ota yhteyttä
Senaatin Notariaatti Oy LKV
Lämmittäjänkatu 4 A
FIN-00880 Helsinki
Tel:
Näytä puhelinnumero
+358 9 7745 100
Pyydä lisätietoa
