Vuokrataan toimistotilat - Helsinki
Fredrikinkatu 34, Kamppi, 00100 Helsinki #10652688
Toimistotilaa hyvällä paikalla Helsingin Kampissa, Fredrikinkadun ja Kalevankadun kulmassa.
Osoite
Fredrikinkatu 34, 00100 Helsinki
Tilatyyppi
Toimistotilaa
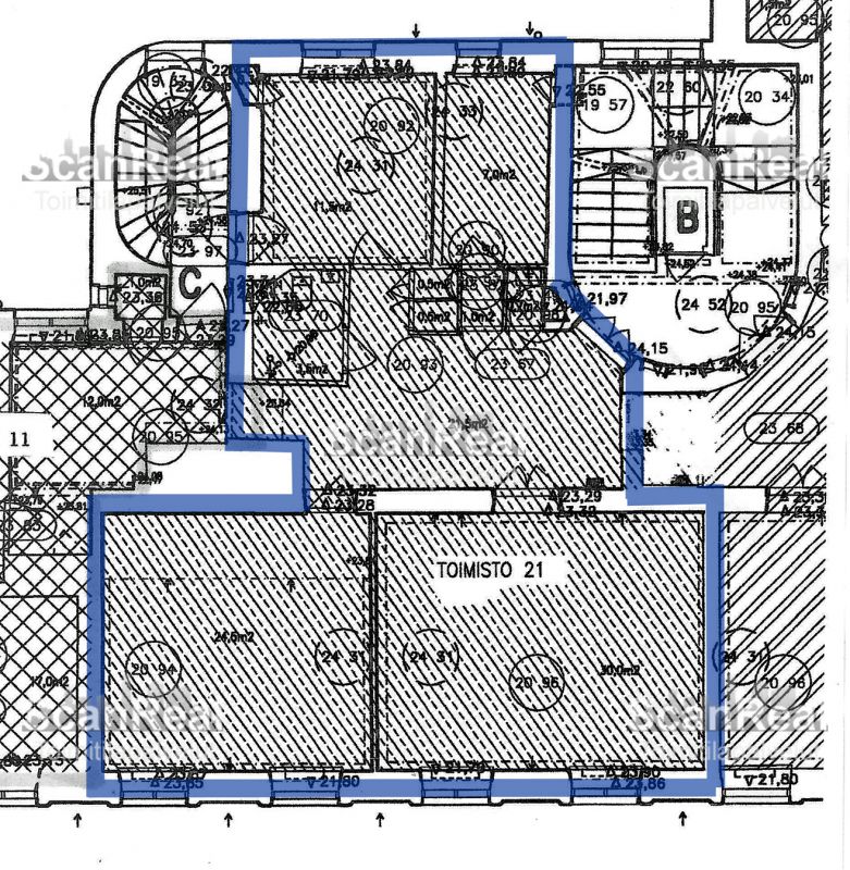
102 m2
Pohjapiirros
Kiinteistö
Toimistotilaa hyvällä paikalla Helsingin Kampissa, Fredrikinkadun ja Kalevankadun kulmassa.
Tila koostuu avotilasta, muutamasta huoneesta, keittiöstä ja wc-tiloista.
Kiinteistössä on kaukokylmä.
Tila koostuu avotilasta, muutamasta huoneesta, keittiöstä ja wc-tiloista.
Kiinteistössä on kaukokylmä.
Kulkuyhteydet
Alueella on loistavat julkiset kulkuyhteydet, mm. Kampin metro- ja linja-autoasemat sijaitsevat lyhyen kävelymatkan päässä.
Lisätietoa saneerauksista
Ilmastointiremontti valmistunut 2016
Vapautuu
Heti
Kerros
3
Energiatehokkuusluokka
Ei lain edellyttämää energiatodistusta
Näkyvällä paikalla
Hissi
Ota yhteyttä
ScanReal Oy LKV
Opus Business Park
Hitsaajankatu 24
00810 Helsinki
info@scanreal.fi
Puh:
Näytä puhelinnumero
020 730 8830
Sopivat toimitilat yhdellä otolla!
Kartoitamme toimitilatarpeesi ja etsimme yrityksellesi parhaiten sopivat vapaat toimitilat. Koska vuokranantajat maksavat palvelumme, on tämä yrityksellesi veloituksetonta.
OTA YHTEYTTÄ - SOVI NÄYTTÖ!
Kaikki kohteemme eivät ole netissä, kerro tilatarpeesi niin kartoitamme vaihtoehdot.
Palvelumme on tilanhakijalle ilmainen
Pyydä lisätietoa
