Vuokrataan toimistotilat - Espoo
Olarinluoma 14, Olarinluoma, 02200 Espoo #10651924
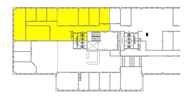
Vuokrattavana erittäin siistiä kolmannen kerroksen toimistotilaa. Toimistotilaan kuuluu 4 huonetta sekä avotilaa.
Osoite
Olarinluoma 14, 02200 Espoo
Tilatyyppi
Toimistotilaa
195 m2
Kiinteistö
Vuokrattavana erittäin siistiä kolmannen kerroksen toimistotilaa. Toimistotilaan kuuluu 4 huonetta sekä avotilaa.
Sijainti
Olarinluoma, Espoo
Pysäköinti
Pihalla runsaasti pysäköintipaikkoja.
Palvelut
- Lounasravintola
Kulkuyhteydet
- Bussi
- Oma auto
- Oma auto
Vapautuu
Heti
Kerros
3
Energiatehokkuusluokka
Ei lain edellyttämää energiatodistusta
Näkyvällä paikalla
Hissi
Ota yhteyttä
REALIUM OY LKV
Tammasaarenkatu 1, 00180 Helsinki
Vaihde:
Näytä puhelinnumero
010 326 346
Tuomo Mäkelä
tuomo.makela@realium.fi
p.
Näytä puhelinnumero
044 050 1158
Joel Keto
joel.keto@realium.fi
p.
Näytä puhelinnumero
045 317 0330
KAIKKI TILAVAIHTOEHDOT KERRALLA!
SOITA - MEILAA JA TILAA NÄYTTÖ!
Ilmainen palvelu tilanhakijoille.
Kartoitamme parhaat tilavaihtoehdot.
Kaikki kohteet eivät ole netissä.
Pyydä lisätietoa
