Vuokrataan liiketilat - Lappeenranta
Myllärinkatu 10, Myllymäki, 53100 Lappeenranta #10643859
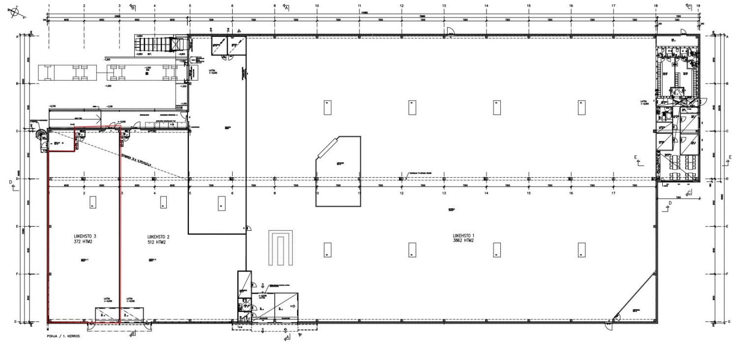
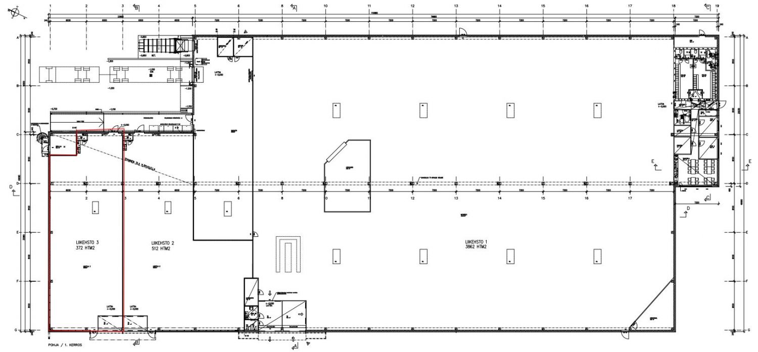
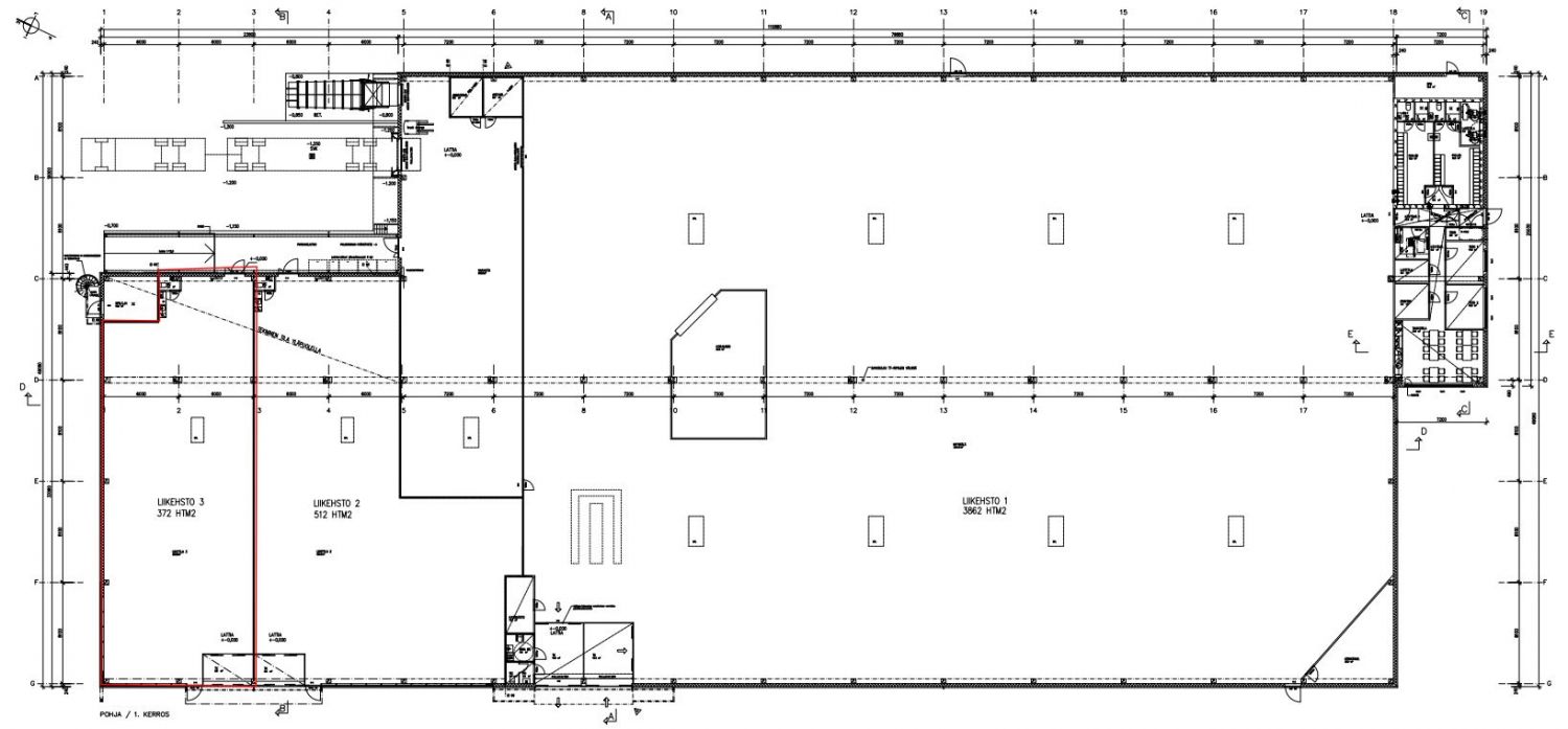
Vuokrataan liiketila Lappeenrannasta, Myllymäen Kauppapuistosta. Kiinteistö on valmistunut vuonna 2017 ja tarjoaa siistit uudehkot tilat. Samassa kiinteistössä toimii mm. XXL:n myymälä.
Lisätietoja 020 7290 710 ja lisää kohteita premises.fi
Kohteella ei lain edellyttämää energiatodistusta tai energialuokka ei tiedossa.Kerros: katu
Osoite
Myllärinkatu 10, 53100 Lappeenranta
Tilatyyppi
Liiketilaa
372 m2
Ota yhteyttä
CRE PREMISES
Puh. Näytä puhelinnumero 020 7290 710
Vantaankoskentie 14
01670 VANTAA
Pyydä lisätietoa
