Vuokrataan liiketilat - Helsinki
Sörnäisten Rantatie 31, Kalasatama, 00540 Helsinki #10643223
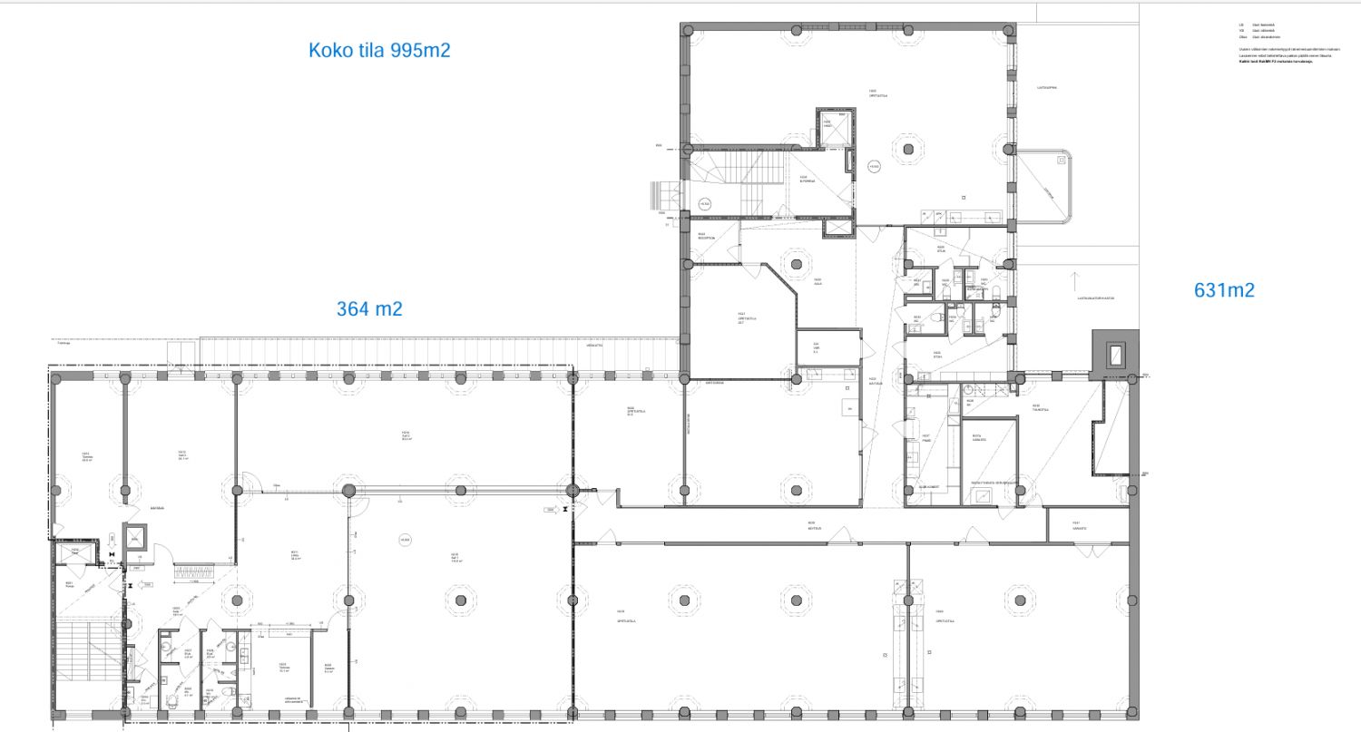
Vuokrattavana avaraa, hyväkuntoista toimitilaa.
Osoite
Sörnäisten Rantatie 31, 00540 Helsinki
Tilatyyppi
Liiketilaa
995 m2
Kiinteistö
Vuokrattavana avaraa, hyväkuntoista toimistotilaa. Tila soveltuu erinomaisesti esimerkiksi liikunta-alan yrityksille ja toimijoille.
Sijainti
Sörnäinen, Helsinki
Pysäköinti
Autolla liikkuvat saavat pysäköityä autonsa rakennuksen viereiseen pysäköintihalliin, josta löytyvät kaikki kohteen autopaikat.
Palvelut
Kauppakeskus REDI: n palvelut.
Kulkuyhteydet
-Metro
-Bussi
-Raitiovaunu
-Oma auto
-Bussi
-Raitiovaunu
-Oma auto
Vapautuu
Heti
Kerros
2
Energiatehokkuusluokka
Ei lain edellyttämää energiatodistusta
Näkyvällä paikalla
Hissi
Ota yhteyttä
REALIUM OY LKV
Tammasaarenkatu 1, 00180 Helsinki
Vaihde:
Näytä puhelinnumero
010 326 346
Tuomo Mäkelä
tuomo.makela@realium.fi
p.
Näytä puhelinnumero
044 050 1158
Joel Keto
joel.keto@realium.fi
p.
Näytä puhelinnumero
045 317 0330
KAIKKI TILAVAIHTOEHDOT KERRALLA!
SOITA - MEILAA JA TILAA NÄYTTÖ!
Ilmainen palvelu tilanhakijoille.
Kartoitamme parhaat tilavaihtoehdot.
Kaikki kohteet eivät ole netissä.
Pyydä lisätietoa
