Vuokrataan toimistotilat - Oulu
Kirkkokatu 19 A14, 90100 Oulu #10641182
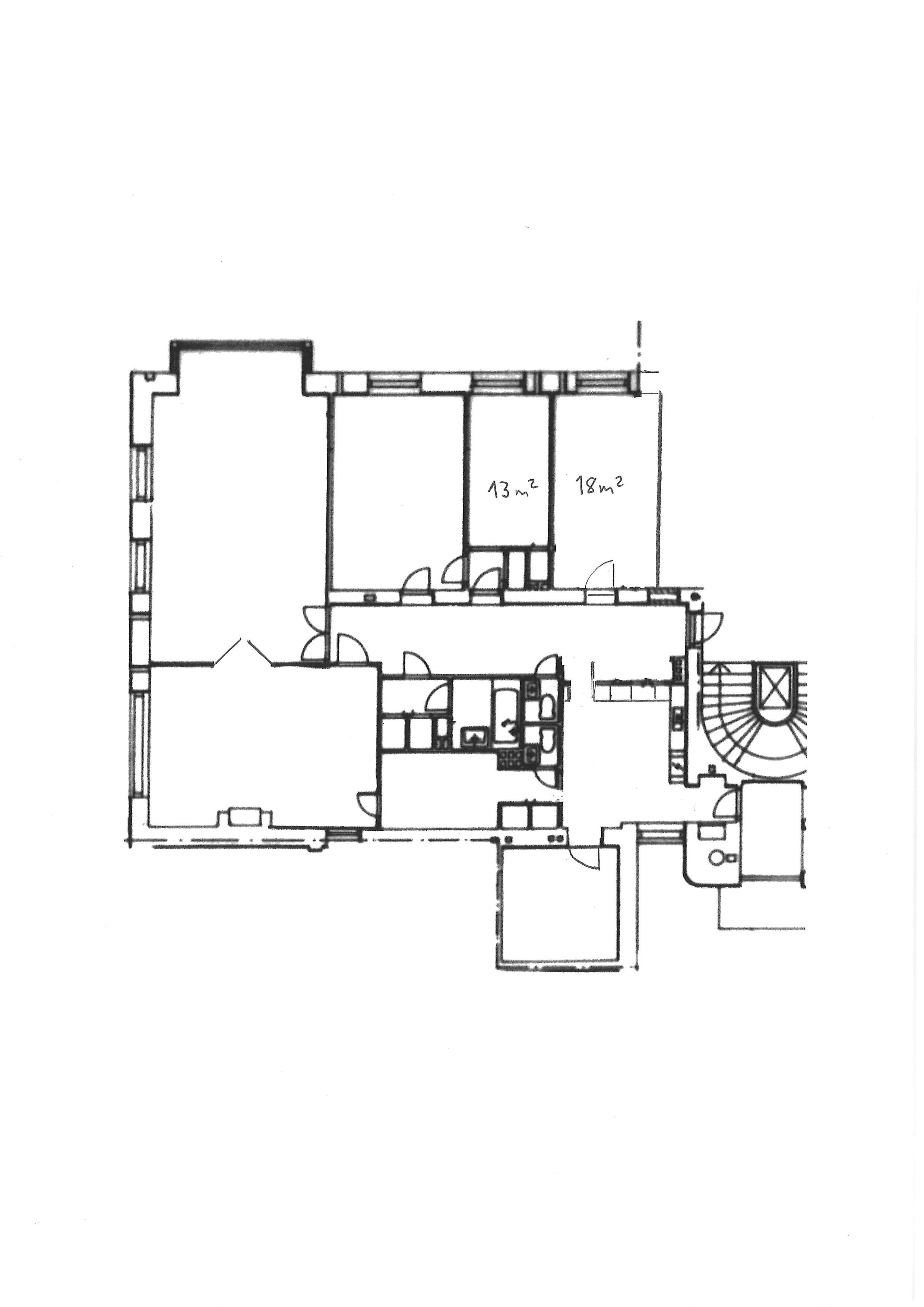
Vuokrataan Rotuaarilta erittäin siistissä kunnossa oleva toimistohuoneisto!
7 erillistä huonetta, iso neuvotteluhuone, keittiö, tila teknisille laitteille, 2 wc:ta sekä kph. Lattiossa parketti, seinät maalattu.
Osoite
Kirkkokatu 19 A14, 90100 Oulu
Tilatyyppi
Toimistotilaa
182 m2
Pohjapiirros
Vuokra
2.200,00 EUR / kk, ei lisätä alvia, lisäksi käyttösähkö ja vesi
Vuokraan sisältyy lämpö
Sijainti
Kauppurienkadun ja Kirkkokadun kulmauksessa
Palvelut
Ydinkeskustan
Kulkuyhteydet
Bussit Torikatu pitkin molempiin suuntiin
Vapautuu
01.07.2025
Rakennusvuosi
1936
Kerros
5 / 5
Energiatehokkuusluokka
D2018
E-luku
185 kWhE/m²/vuosi
Näkyvällä paikalla
Ota yhteyttä
Pohjois-Suomen Toimitilat Oy
Sepänkatu 20, 90100 Oulu
Pekka Valkola
Näytä puhelinnumero
044 311 0555
Pyydä lisätietoa
