Vuokrataan liiketilat, tuotantotilat, varastotilat - Oulu
Poratie 5, 90150 Oulu #10641173
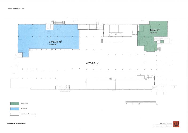
Vuokrataan Poratieltä teollisuus- varasto sekä liiketilakäyttöön sopivaa hallitilaa 3557m². Halli voidaan jakaa esim. kolmeen osaan. Pienin osa n. 1000m².
Osa hallista voidaan muuttaa myös toimistokäyttöön.
Soita ja sovi esittely: Pekka Valkola 044 311 0555
Osoite
Poratie 5, 90150 Oulu
Tilatyyppi
Liiketilaa
1000 - 3557 m2
Tuotantotilaa
1000 - 3557 m2
Varastotilaa
1000 - 3557 m2
Yhteensä
1000 - 3557 m2
Tilajako
Jaettavissa
Katutason hallitilaa
Pohjapiirros
Vuokra
Hallitila.alk.8,00€ /m²+ alv.
Vuokraan sisältyy lämpö
Pysäköinti
Piha-alueella pistokepaikkoja sekä asiakaspaikkoja
Kulkuyhteydet
Bussit Lintulammentietä
Lisätietoa saneerauksista
Myös vanhapuoli saneerattu 2008
Vapautuu
Heti
Rakennusvuosi
2008
Saneerausvuosi
2008
Näkyvällä paikalla
Jaettavissa
Liitetiedostot
Ota yhteyttä
Pohjois-Suomen Toimitilat Oy
Sepänkatu 20, 90100 Oulu
Pekka Valkola
Näytä puhelinnumero
044 311 0555
Pyydä lisätietoa
