Vuokrataan toimistotilat - Helsinki
Pasilanraitio 5, Pasila, 00240 Helsinki #10638231
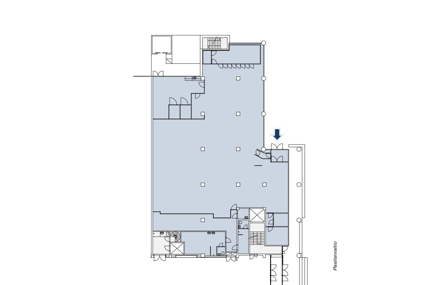
Vuokrataan valoisa katutason liiketila Länsi-Pasilasta omalla sisäänkäynnillä Pasilaraition puolelta. Suuret näyteikkunat tuovat valoa tilaan ja näkyvyyttä ulkoapäin. Tämä monikäyttöinen tila tukee monenlaista toimintaa, esimerkiksi kauppa, kuntosali, eläinlääkäriasema, apteekki, ym. Tilan korkeus on pääosin 4,1metriä, paikoiteillen 2,74 meriä johtuen tilan tekniikasta. Vain yksi kadun ylitys ja pääset kulkemaan Pasilan asemalle sisätiloissa Triplan kautta.
Ota yhteyttä ja sovi esittely, vuokrauspalvelumme on tilanhakijoille maksuton.
Hissi
Senaatin Notariaatti Oy LKV
Lämmittäjänkatu 4 A
FIN-00880 Helsinki
Tel:
Näytä puhelinnumero
+358 9 7745 100
