Vuokrataan toimistotilat - Helsinki
Kumpulantie 15, Vallila, 00520 Helsinki #10638066
Vuokrataan hyvätasoista muuntojoustavaa toimitilaa kiinteistöstä Kumpulantie 15/Elimäenkatu 28-30. Tilat ovat nykymuodossaan kombitoimistoa ja ne muokataan vuokralaisen toiveita vastaaviksi sekä pohjaratkaisun että materiaalien osalta. Talotekniikka on modernia ja ajanmukaista tässä vuonna 1999 valmistuneesta kiinteistössä; mm. huoneistokohtainen jäähdytys, CAT 6-kaapelointi, kulunvalvonta ym. Tilaan on myös tavarahissiyhteys.
Osoite
Kumpulantie 15, 00520 Helsinki
Tilatyyppi
Toimistotilaa
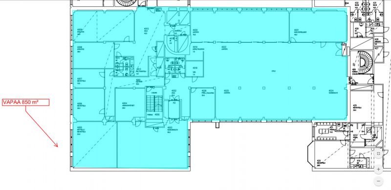
850 m2
Tilajako
Jaettavissa
331m2 / 519m2
Pohjapiirros
Sijainti
Vallila
Pysäköinti
Kiinteistön omassa lämpimässä autohallissa n. 250 paikkaa, lisäpaikkoja saatavana mm. viereisen kiinteistön parkkihallista tai Q-Park Vallilasta.
Kulkuyhteydet
Pasilan juna-asema n. 10 min. kävelymatkan päässä, raitiovaunu- ja bussipysäkki n. 200 m.
Vapautuu
Heti
Rakennusvuosi
1999
Kerros
5
Energiatehokkuusluokka
Ei lain edellyttämää energiatodistusta
Jaettavissa
Hissi
Liitetiedostot
Ota yhteyttä
Senaatin Notariaatti Oy LKV
Lämmittäjänkatu 4 A
FIN-00880 Helsinki
Tel:
Näytä puhelinnumero
+358 9 7745 100
Pyydä lisätietoa
