Vuokrataan liiketilat - Helsinki
Simonkatu 6, Keskusta, 00100 Helsinki #10636799
Kauppakeskus Forumissa, vilkkaalla liikepaikalla trendikäs myymälätila.
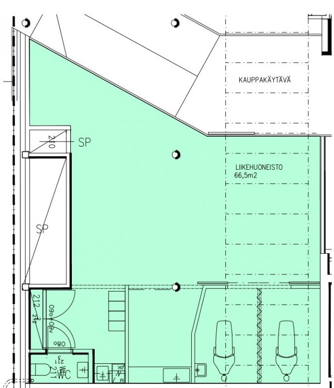
Liiketila sijaitsee Simonkadun sisäänkäynniltä tultaessa 2.kerroksessa, sisäänkäynti kauppakeskuksen puolelta, Kukontorin käytävältä. Tilassa myös pieni taukotila ja wc. Sisäänkäynti myös Forumin ravintolamaailman puolelta. Soveltuu nykykunnossa oikein hyvin esim. parturi-kampaamoksi.
Osoite
Simonkatu 6, 00100 Helsinki
Tilatyyppi
Liiketilaa
66 m2
Pohjapiirros
Tila soveltuu
Parturi- ja kampaamo
Kiinteistö
Kauppakeskus FORUM
Sijainti
Keskusta
Pysäköinti
Forumin pysäköintilaitos, josta suora hissiyhteys
Kulkuyhteydet
Kampin keskuksen liikenneterminaaliin ja rautatieasemalle maanalainen käytävä-yhteys.
Vapautuu
Heti
Kerros
2
Energiatehokkuusluokka
Ei lain edellyttämää energiatodistusta
Näkyvällä paikalla
Hissi
Liitetiedostot
Ota yhteyttä
Senaatin Notariaatti Oy LKV
Lämmittäjänkatu 4 A
FIN-00880 Helsinki
Tel:
Näytä puhelinnumero
+358 9 7745 100
Pyydä lisätietoa
