Vuokrataan toimistotilat - Espoo
Linnoitustie 4, Leppävaara, Leppävaara, 02600 Espoo #10635213
Osoite
Linnoitustie 4, Leppävaara, 02600 Espoo
Tilatyyppi
Toimistotilaa
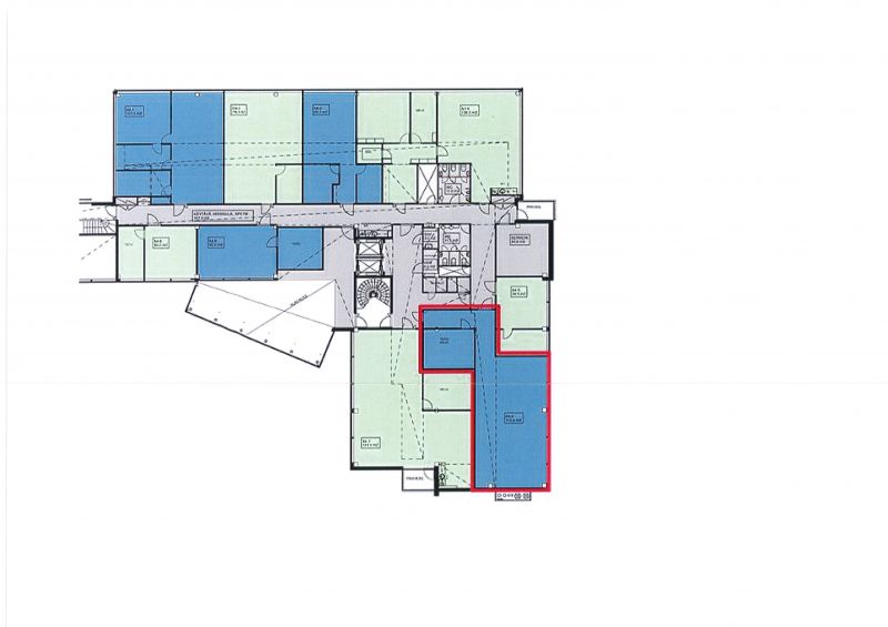
115,5 m2
Kiinteistö
4. kerroksen toimistotila Quartetto Business Parkin talosta.
Yrityspuiston toimitilakonsepti ja siihen liittyvä palvelukokonaisuus on suunniteltu vaativan yrityksen tarpeisiin.
Yrityspuiston toimitilakonsepti ja siihen liittyvä palvelukokonaisuus on suunniteltu vaativan yrityksen tarpeisiin.
Sijainti
Quartetto sijaitsee erinomaisella ja näkyvällä paikalla Etelä-Leppävaaran toimistoalueella Kehä I:n tuntumassa. Kauppakeskus Sellon palvelut sekä juna-asema ovat kävelymatkan etäisyydellä. Alueen hyviä julkisen liikenteen palveluja täydentävät kohteen hyvät henkilökunnan pysäköintitilat.
Palvelut
Kiinteistössä on laajat ja monipuoliset nykyaikaisen Business Parkin palvelut.
Kiinteistössä on myös erillisiä kokous- ja edustustiloja.
Kiinteistössä on myös erillisiä kokous- ja edustustiloja.
Vapautuu
Heti
Energiatehokkuusluokka
D2013
Ota yhteyttä
Comreal Oy LKV
Tuula Leikas
Näytä puhelinnumero
040 531 3722
P.
Näytä puhelinnumero
020 744 1000
Läkkisepänkuja 6, 00620 Helsinki
Comreal Oy on kasvava ja osaava kiinteistöalan palveluntuottaja kiinteistöjen omistajille ja käyttäjille.
Kiinteistö on sijoittajalle hyvä sijoitus vain, jos siellä on tyytyväiset asiakkaat, eli vuokralaiset. Siksi laadukas asiakaspalvelu on toiminnan lähtökohta.
Pyydä lisätietoa
