Vuokrataan - Helsinki
Paciuksenkatu 21, Meilahti, 00270 Helsinki #10635140
Valmis vastaanotto/klinikkatila terveydenhuoltoalan toimijalle.
Osoite
Paciuksenkatu 21, 00270 Helsinki
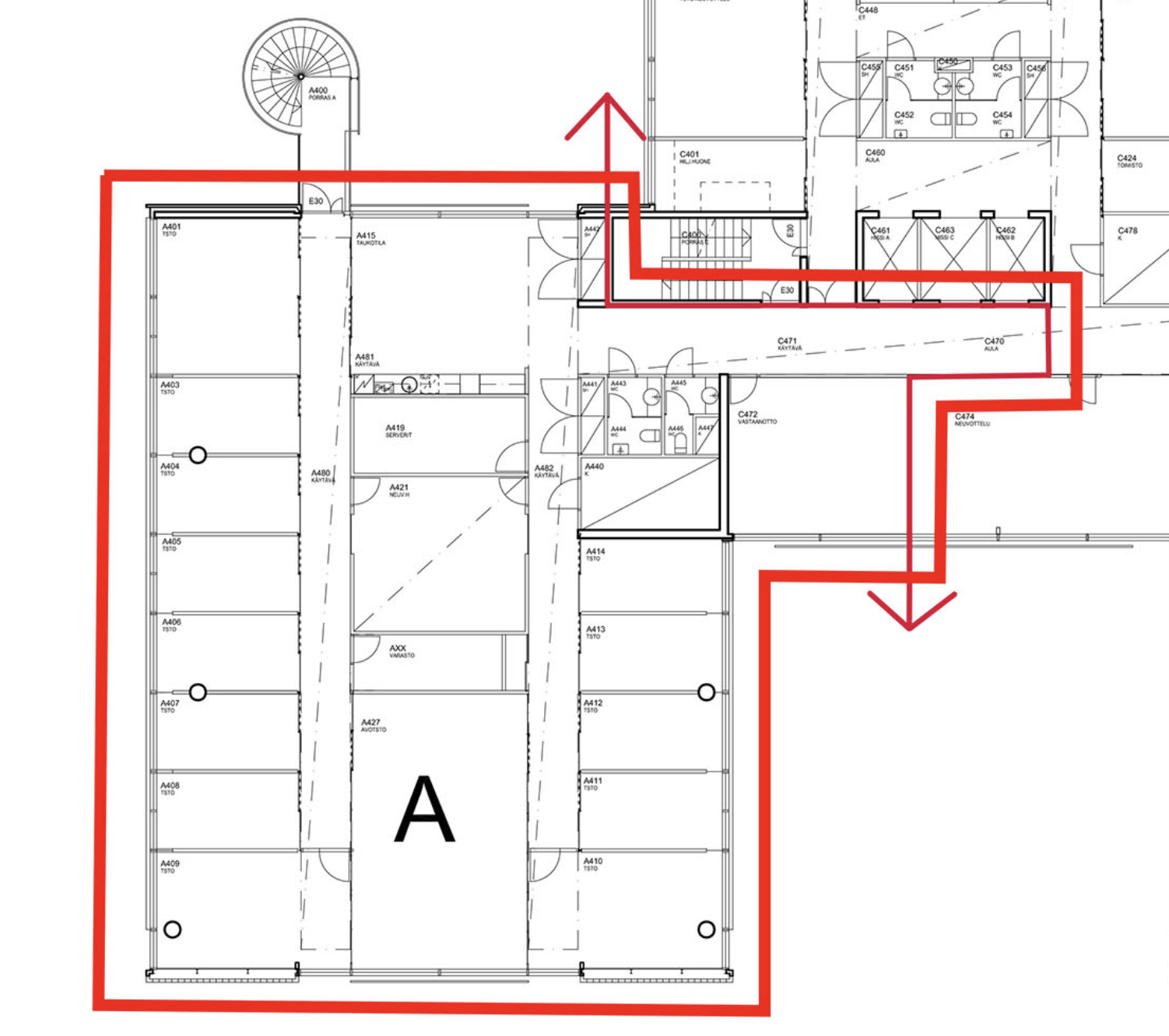
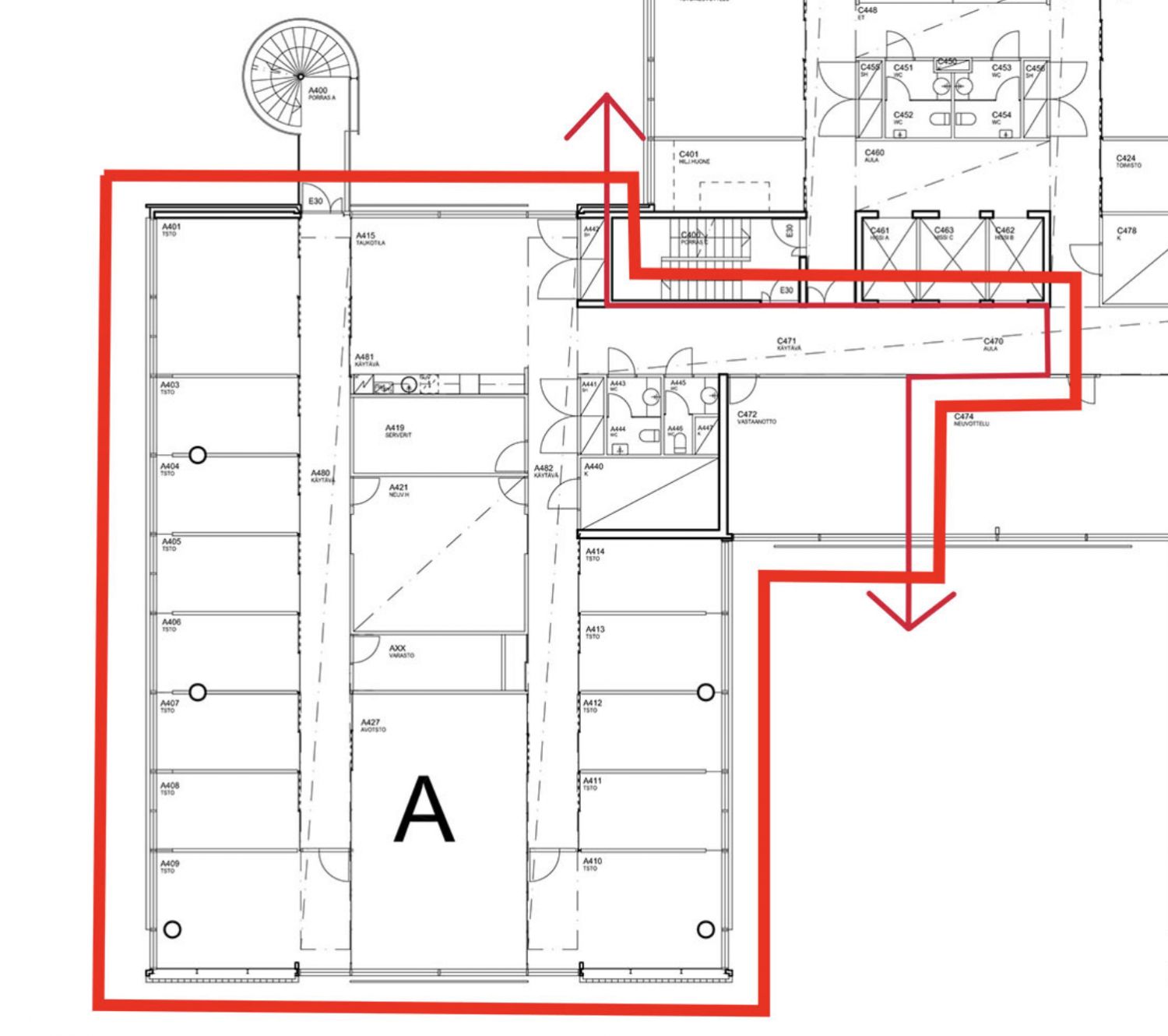
Pohjapiirros
Virtuaaliesittely
Kiinteistö
Vuokrattavana 4. kerroksen toimitila, joka on suunniteltu vastaamaan erityisesti terveydenhuoltoalan tarpeita. Tila tarjoaa monipuoliset ja käytännölliset ratkaisut esimerkiksi klinikalle, vastaanottotoimintaan tai muuhun terveydenhuollon käyttöön.
Tilassa on yhteensä 16 huonetta, joista jokaisessa on vesipiste. Tilassa on myös oma hissiaula, joka tarjoaa yksityisyyttä ja sujuvuutta asiakkaiden kulkemiseen. Lisäksi toimitilassa on oma keittiö- ja taukotila. Tilaan kuuluu myös varastotila ja wc-tilat.
Tämä toimitila on erinomainen valinta terveydenhuoltoalan toimijalle, joka tarvitsee käytännölliset ja mukautuvat tilat asiakkaidensa ja henkilökuntansa tarpeisiin.
Kiinteistössä toimii moderni aulapalvelu, joka helpottaa asiakas- ja vierasliikennettä.
Ylimmässä kerroksessa on käytettävissä tyylikäs edustussauna, täydellinen kokousten ja asiakastapaamisten yhteyteen.
Tilassa on yhteensä 16 huonetta, joista jokaisessa on vesipiste. Tilassa on myös oma hissiaula, joka tarjoaa yksityisyyttä ja sujuvuutta asiakkaiden kulkemiseen. Lisäksi toimitilassa on oma keittiö- ja taukotila. Tilaan kuuluu myös varastotila ja wc-tilat.
Tämä toimitila on erinomainen valinta terveydenhuoltoalan toimijalle, joka tarvitsee käytännölliset ja mukautuvat tilat asiakkaidensa ja henkilökuntansa tarpeisiin.
Kiinteistössä toimii moderni aulapalvelu, joka helpottaa asiakas- ja vierasliikennettä.
Ylimmässä kerroksessa on käytettävissä tyylikäs edustussauna, täydellinen kokousten ja asiakastapaamisten yhteyteen.
Sijainti
Paciuksenkatu 21 sijaitsee keskeisellä ja helposti saavutettavalla paikalla Meilahden ja Töölön rajamailla Helsingissä. Tämä alue tunnetaan vehreydestään, hyvistä liikenneyhteyksistään ja läheisyydestään niin keskustaan kuin muihinkin kaupunginosiin.
Ympäristö
Kiinteistö sijaitsee vehreässä ympäristössä, jossa on runsaasti ulkoilumahdollisuuksia, kuten läheiset Seurasaaren ja Meilahden puistot. Meilahden sairaala-alue ja Helsingin yliopiston kampukset sijaitsevat vain lyhyen matkan päässä.
Pysäköinti
Kaikki pihapaikat merkitty yrityksille / heidän asiakkailleen, henkilökunnan kaikki paikat autohallissa. Alueella on myös hyvin pysäköintimahdollisuuksia, ja kadunvarsipaikkoja on tarjolla Paciuksenkadulla ja sen lähikaduilla.
Palvelut
Lähettyvillä on monipuolinen valikoima palveluita, kuten ravintoloita, kahviloita ja päivittäistavarakauppoja.
Kulkuyhteydet
Paciuksenkatu on osa pääväylien verkostoa, joka yhdistää sujuvasti Helsingin keskustan ja lännen suunnan. Alueella kulkee useita bussilinjoja sekä raitiovaunuja, jotka tarjoavat suoran yhteyden Helsingin keskustaan ja muihin keskeisiin kaupunginosiin. Lähin raitiovaunupysäkki ja bussipysäkki sijaitsevat kävelyetäisyydellä.
Vuokralaisia
Kiinteistössä toimii useita terveydenhuoltoalan toimijoita, mikä luo synergiaa ja yhteisiä asiakasvirtoja.
Muuta
Tutustu tiloihin kätevästi 3D virtual kierroksen avulla ja pääset kiertämään tilat kätevästi ennen varsinaista esittelyä ja pääset tutustumaan pohjakuvaan helposti.
Tila on mahdollista vuokrata alv 0% toimintaan.
Tila on mahdollista vuokrata alv 0% toimintaan.
Vapautuu
Heti
Energiatehokkuusluokka
E2013
Näkyvällä paikalla
Ota yhteyttä
Comreal Oy LKV
Joonas Nilsson
Näytä puhelinnumero
044 328 3425
Läkkisepänkuja 6, 00620 Helsinki
Comreal on valtakunnallinen, asiantunteva ja aktiivinen kiinteistöalan kumppani, joka palvelee sekä kiinteistönomistajia että toimitilojen käyttäjiä. Toimintamme ydin on yksinkertainen: tarjota erinomaista palvelua kaikille.
Pyydä lisätietoa
