Vuokrataan tuotantotilat, varastotilat - Orimattila
Kaitilantie 30, 16400 Orimattila #10634850
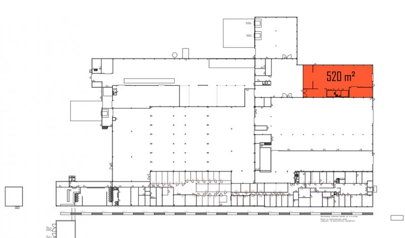
Vuokrattavana tuotanto- tai varastotilaa. Tilan korkeus on n. 5,6 m.
Osoite
Kaitilantie 30, 16400 Orimattila
Tilatyyppi
Tuotantotilaa
520 m2
Varastotilaa
520 m2
Yhteensä
520 m2
Kiinteistö
Vuokrattavana tuotanto- tai varastotilaa, jonne johtaa 3,6 m korkea ja 4,17 m leveä nosto-ovi. Tilan korkeus on 5,6 m kattopalkkiin asti. Laaja halli, jossa erillinen n. 50 m²:n kokoinen tila varastoksi. Lisäksi pieni toimisto, keittiö ja wc. Lastauslaiturit ja sisäänajomahdollisuudet tiloihin.
Sijainti
Orimattila, Lahden seutu
Pysäköinti
Kiinteistön pihalla.
Palvelut
Lahti 15 min.
Kulkuyhteydet
-Bussi
-Oma auto
-Oma auto
Vapautuu
Heti
Kerros
1
Energiatehokkuusluokka
Ei lain edellyttämää energiatodistusta
Näkyvällä paikalla
Lastauslaituri
Ota yhteyttä
REALIUM OY LKV
Tammasaarenkatu 1, 00180 Helsinki
Vaihde:
Näytä puhelinnumero
010 326 346
Tuomo Mäkelä
tuomo.makela@realium.fi
p.
Näytä puhelinnumero
044 050 1158
Joel Keto
joel.keto@realium.fi
p.
Näytä puhelinnumero
045 317 0330
KAIKKI TILAVAIHTOEHDOT KERRALLA!
SOITA - MEILAA JA TILAA NÄYTTÖ!
Ilmainen palvelu tilanhakijoille.
Kartoitamme parhaat tilavaihtoehdot.
Kaikki kohteet eivät ole netissä.
Pyydä lisätietoa
