Vuokrataan varastotilat - Espoo
Sierakiventie 8-10, Kauklahti, 02780 Espoo #10634463
Laatua ja monipuolisuutta edullisesti tarjoava toimisto-, tuotanto ja varastokiinteistö Espoossa.
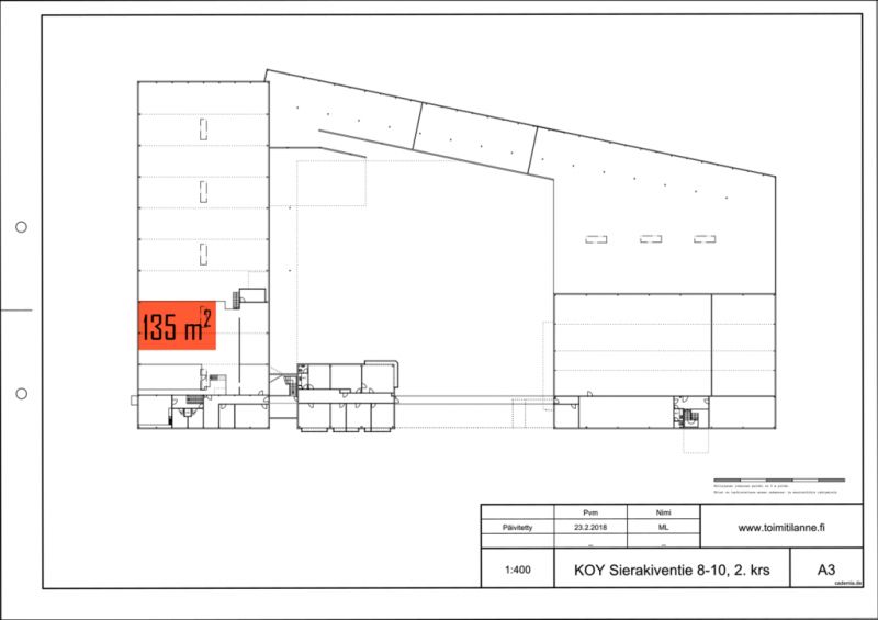
Tämän 2. kerroksen 102m2 tilan korkeus on 2,5m ja se sopii hyvin esimerkiksi pientavaroiden varastointiin. Varastossa on runsaasti hyllytilaa ja se on mahdollista jakaa pienempiin osiin. Tila on kuiva ja lämmin. Tilan kokonaiskoko 135m2, josta vapaana 102m2.
Espoon Kauklahdessa hyvien kulkuyhteyksien varrella sijaitseva varasto- ja toimistokiinteistö on valmistunut 1980 -luvulla ja sen kokonaispinta-ala on 3715m2. Kiinteistössä on varasto- ja toimistotilojen lisäksi vuokrattavana kokous- ja koulutustiloja, tarvittaessa myös kalustettuina. Rakennuksessa on myös sauna- ja virkistystilat.
Kysy lisää numerosta 044 723 4700 tai info@bref.fi. Palvelumme on tilanhakijoille ilmainen.
Bureau Real Estate Finland Oy
Lars Sonckin kaari 16, 02600 Espoo
Näytä puhelinnumero
0447234700
Bureau Real Estate Finland Oy
https://www.bref.fi