Vuokrataan toimistotilat - Helsinki
Ruosilantie 14, Konala, 00390 Helsinki #10634391
Toisen kerroksen rauhallinen toimisto jossa on puistonäkymillä.
Osoite
Ruosilantie 14, 00390 Helsinki
Tilatyyppi
Toimistotilaa
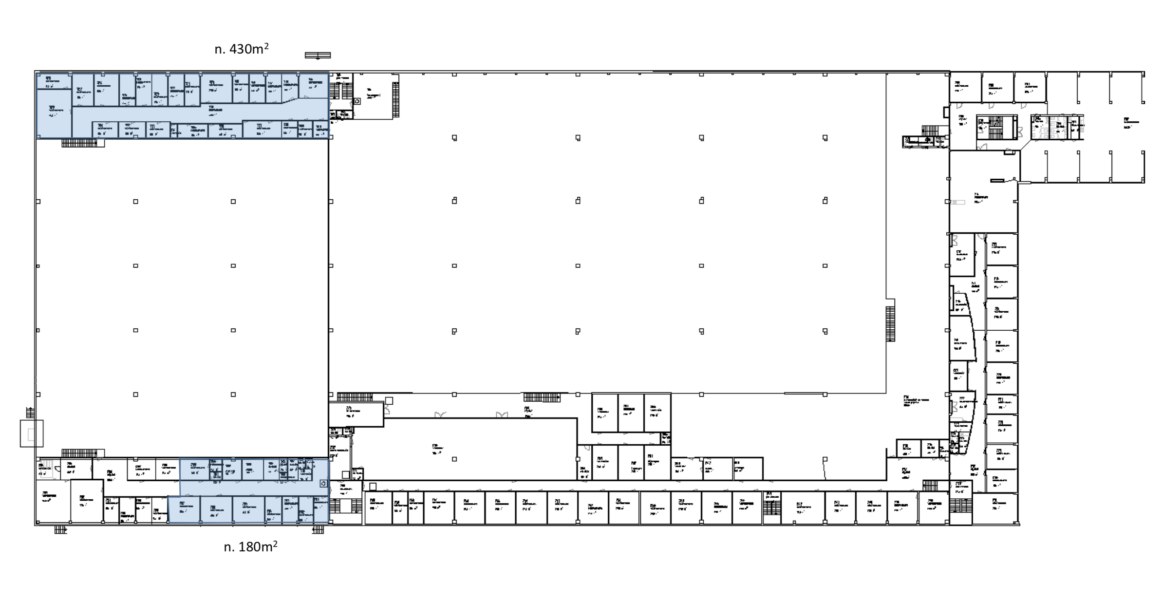
430 m2
Pohjapiirros
Kiinteistö
Tilat tällä hetkellä jaettu huoneisiin, mahdollisuus muuntaa myös avotilaksi tarvittaessa.
Kiinteistössä on lounasravintola ja laaja parkkialue.
Kiinteistössä on lounasravintola ja laaja parkkialue.
Sijainti
Koy Helsingin Ruosilantie 14 sijaitsee loistavalla paikalla Konalan ytimessä.
Pysäköinti
Kiinteistön aidatulla pihalla runsaasti parkkitilaa.
Palvelut
Kiinteistössä on lounasravintola. Kauppakeskus Ristikon palvelut ovat lyhyen kävelymatkan päässä Vihdintien toisella puolella.
Kulkuyhteydet
Malminkartanon juna-asema on noin 1,3 kilometrin päässä kiinteistöstä.
Vapautuu
Heti
Energiatehokkuusluokka
Ei lain edellyttämää energiatodistusta
Näkyvällä paikalla
Ota yhteyttä
Comreal Oy LKV
Joonas Nilsson
Näytä puhelinnumero
044 328 3425
P.
Näytä puhelinnumero
020 744 1000
Läkkisepänkuja 6, 00620 Helsinki
Comreal Oy on kasvava ja osaava kiinteistöalan palveluntuottaja kiinteistöjen omistajille ja käyttäjille.
Kiinteistö on sijoittajalle hyvä sijoitus vain, jos siellä on tyytyväiset asiakkaat, eli vuokralaiset. Siksi laadukas asiakaspalvelu on toiminnan lähtökohta.
Pyydä lisätietoa
