Vuokrataan liiketilat - Helsinki
Tyynenmerenkatu 3, Jätkäsaari, Jätkäsaari, 00220 Helsinki #10633812
Osoite
Tyynenmerenkatu 3, Jätkäsaari, 00220 Helsinki
Tilatyyppi
Liiketilaa
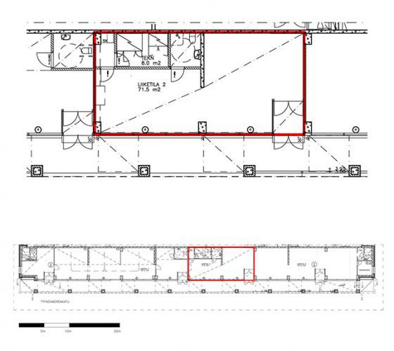
71,5 m2
Kiinteistö
Vuokrataan Jätkäsaaresta asuin- ja liikekiinteistön katutasosta 71,5 m²:n liiketila. Tila koostuu avarasta avotilasta, tuulikaapista sekä suihkullisesta wc-tilasta. Suuret ikkunat kadulle tuovat runsaasti luonnonvaloa ja luovat erinomaiset puitteet liiketoiminnalle. Tila soveltuu monenlaiseen käyttöön kuten myymäläksi, palvelu- tai toimistokäyttöön.
Sijainti
Jätkäsaari on trendikäs ja elävä kaupunginosa aivan Helsingin ydinkeskustan kupeessa. Alueella yhdistyvät merellinen sijainti, moderni arkkitehtuuri ja urbaani elämänrytmi.
Pysäköinti
Kadunvarsipysäköinti.
Palvelut
Läheltä löytyvät laajat palvelut – useita ravintoloita, kahviloita ja päivittäistavarakauppoja. Kävelymatkan päässä sijaitsevat Ruoholahden kauppakeskus, Hietalahden tori ja sen tunnelmallinen kauppahalli. Alueelle on lisäksi tulossa oma kirjasto, kolme koulua ja useita päiväkoteja, mikä lisää asiakasvirtaa entisestään.
Kulkuyhteydet
Erinomaiset liikenneyhteydet julkisilla ja autolla. Raitiovaunupysäkki sijaitsee aivan vieressä, ja keskustaan kävelee muutamassa minuutissa.
Vapautuu
Heti
Rakennusvuosi
2014
Energiatehokkuusluokka
D
Katutasossa
Ota yhteyttä
Comreal Oy LKV
Joonas Nilsson
Näytä puhelinnumero
044 328 3425
Läkkisepänkuja 6, 00620 Helsinki
Comreal on valtakunnallinen, asiantunteva ja aktiivinen kiinteistöalan kumppani, joka palvelee sekä kiinteistönomistajia että toimitilojen käyttäjiä. Toimintamme ydin on yksinkertainen: tarjota erinomaista palvelua kaikille.
Pyydä lisätietoa
